BUBENBERGZENTRUM BERN, Neubau
CH-Bern
Wettbewerb - 6. Preis, 2. Ankauf
2017
Mit einem Neubau soll im westlichen Gebäudeteil des Bubenbergzentrums ein neuer Zugang zum Bahnhof realisiert werden. In den oberen Geschossen werden flexible Gewerberäumlichkeiten angeboten.
In den Sechzigerjahren des letzten Jahrhunderts war die Aufbruchsstimmung mit dem Neubau des Hauptbahnhofes in Bern riesig. Die Stadt hatte nun die einmalige Chance sich von den historisierenden Bauten zu lösen. Bern wurde “modern” und glänzte sich in der Spiegelung der grossflächigen Verglasungen. In dieser Stimmung ist auch das Bubenbergzentrum entstanden. Zusammen mit dem neuen Bahnhof und den neuen Postgebäuden bildete die Gebäudezeile Bubenbergstrasse 8-12 ein Ensemble, das städtebaulich aufeinander abgestimmt war.
Das Gebäude bildet zukünftig den Hauptzugang zur neuen Unterführung „Mitte“ des Bahnhofs Bern. Wodurch die Anforderung nach einer grosszügigen Öffnung des Gebäudes im Erdgeschoss folgt. Gleichzeitig definiert das Gebäude den nördlichen Abschluss des Bubenbergplatzes sowie den Auftakt der Schanzenstrasse.
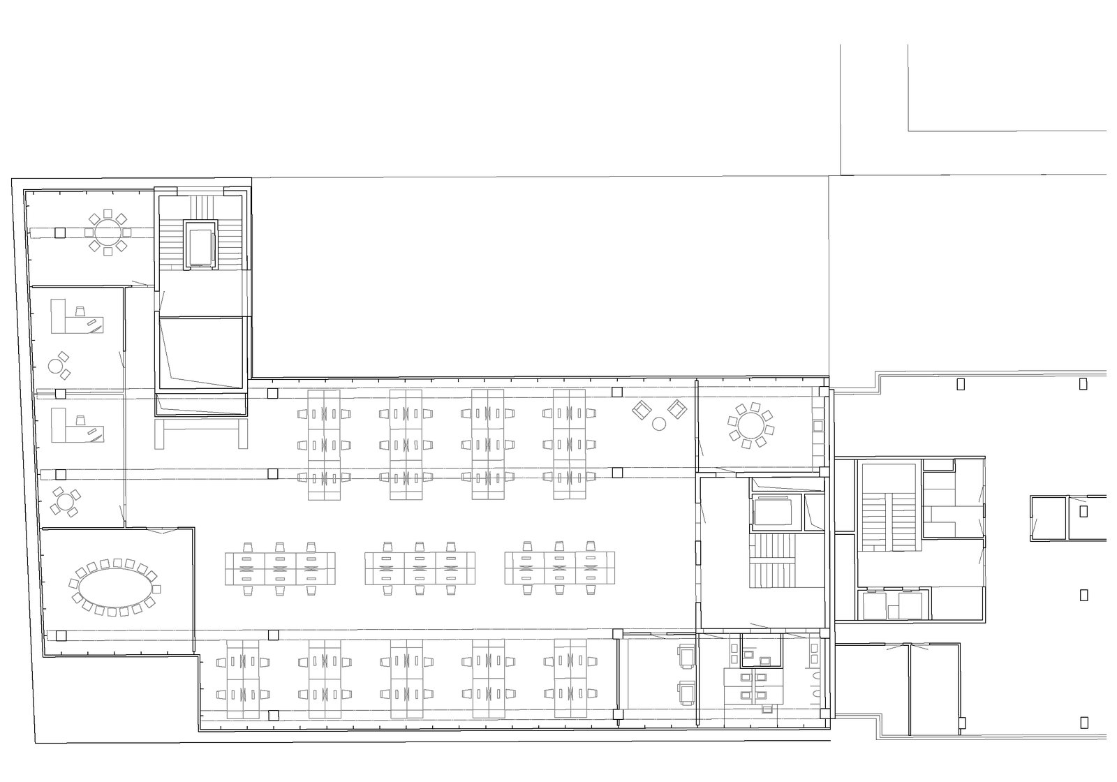
Durch ein klares, durchgehendes statisches System aus Trägern und Stützen wird das Hauptgebäude im Erdgeschoss maximal frei gespielt. Neben den zwei Treppenkernen sind Retail- und Gastroflächen vorgesehen. Der Zugang zu den Treppen und Rolltreppen wird räumlich durch ein eingehängtes Mezzanin ausgespart. Damit erhöht sich das Erdgeschoss partiell auf 6.85 Meter und es entsteht eine grosszügige Abgangshalle. Die vorgehängte Glasfassade folgt der Idee des Umhüllens. Die Wahl des Materials Glas folgt der Idee, den Bezug zu den Gebäuden der „Moderne“ untereinander herzustellen. Damit wird das Ensemble weiterhin zusammen gelesen.
Das konstruktive Prinzip der Fassade ist einfach gehalten. Die Glashaut, bestehend aus vers. eingefärbten Glasstreifen, gehalten in einem Metallprofil, entwickelt eine vertikale Struktur mit leichter Tiefenwirkung.
GF 8’600m2
Bauherrschaft
SBB AG, Division SBB Immobilien, CH-Zürich
