SIEDLUNG NARZISSENWEG, Ersatzneubauten
CH-Biel,
Studienauftrag 1.Preis
2011-2019
Die baugenossenschaftliche Siedlung aus den 1950er Jahren in Mett, einem Stadtteil von Biel, soll durch Neubauten ersetzt werden.
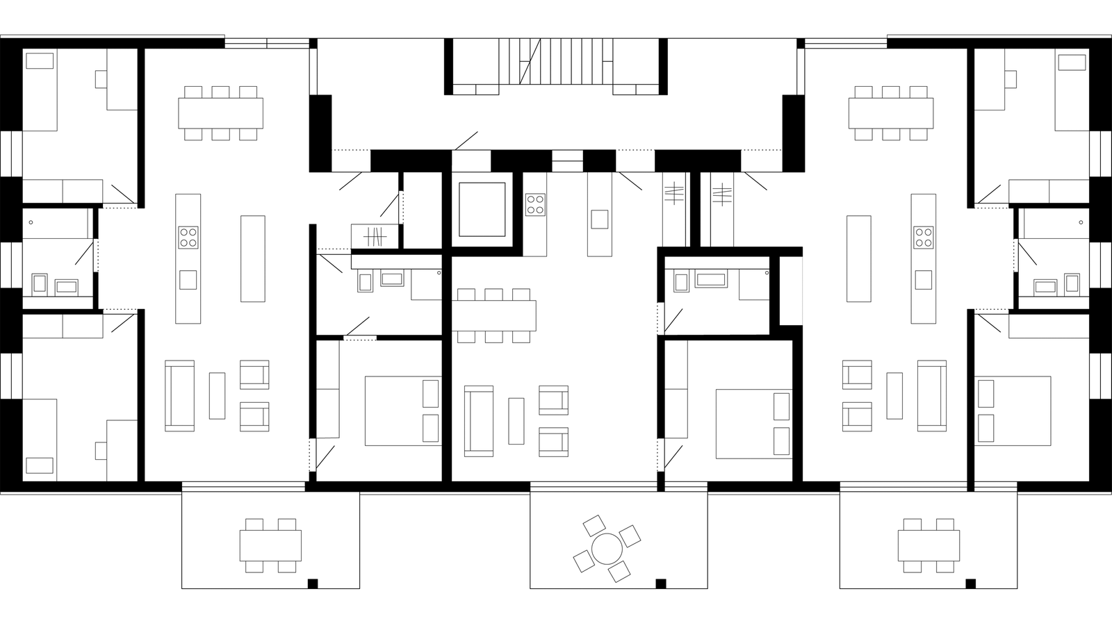
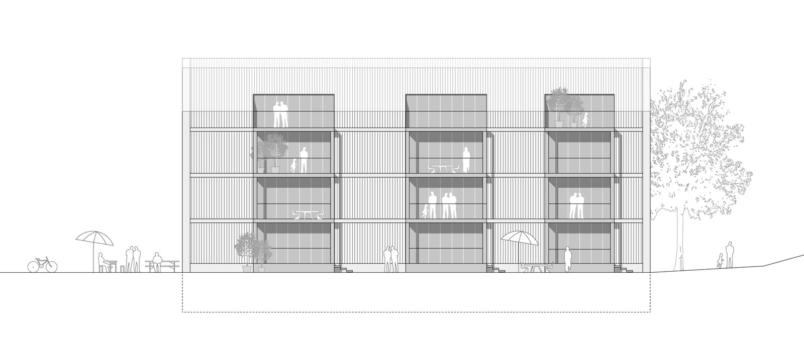
Die Körnung und Dichte der Überbauung wird aufgrund von städtebaulichen Auflagen im Wesentlichen beibehalten. Durch den Wechsel von längs und quer ausgerichteten Baukörpern, wird eine neue Mittelachse ausgebildet, die als Erschliessungs- und vor allem als neuer, identitätsstiftender Freiraum genutzt wird. Der übergeordnete gemeinschaftliche Gedanke im Städtebau wird auch auf die Konzeption der Gebäudetypologien übertragen. Die Gebäude sind als kompakte Dreibünder mit Mansardendach konzipiert. Die Wohnungen werden über den Aussenraum, ähnlich einem „Vorgarten“ erschlossen. Dieser ist so grosszügig dimensioniert, dass der Erschliessungsraum zum erweiterten Wohnraum wird und das Konzept des Durchwohnens mit einem zweiten Aussenraum anderer Ausrichtung komplettiert wird.
GF: 15'315m2
Bauherrschaft
Baugesellschaft Narcisse Jaune
