RAIFFEISENBANK SEELAND, Umbau
CH-Lyss
Studienauftrag
2008
Das Gebäude der Raiffeisenbank Seeland in Lyss soll umgebaut und erweitert werden, wobei der mittlerweile ungenügende Anbau aus den 70er Jahren zur Disposition steht.
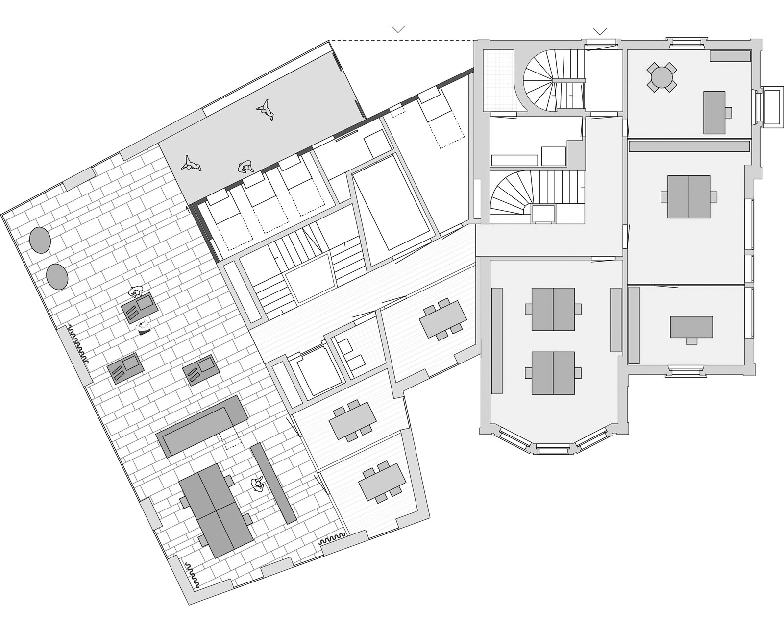
Die Parzelle der Raiffeisenbank liegt zwischen zwei Strassenräumen mit unterschiedlicher Charakteristik: Die Bahnhofstrasse als verkehrsberuhigter Boulevard einerseits und die viel befahrene Bielstrasse andererseits. Um die städtebauliche Solitärstellung des Altbaus stärken zu können bleibt das verbindende Element zweigeschossig und bildet erst mit bewusstem Abstand die weiteren Geschosse aus. Der Zugang für die Kunden erfolgt über den baumbestandenen Vorbereich durch den gedeckten Eingang im Neubau. Die Anordnung der Kundenhalle ermöglicht eine optimale Präsenz gegen Aussen und für die Beratung einen diskreten rückversetzten Bereich. Der Kundenbereich befindet sich im Erdgeschoss, die Obergeschosse bleiben dem Personal vorbehalten. Diese vertikale Trennung vereinfacht zusätzlich das Sicherheitskonzept. Die Eingriffe in den Altbau sind auf ein Minimum reduziert. Die bisherigen Nutzungen bleiben erhalten und werden durch Infrastrukturbereiche ergänzt. Die Tragstruktur des Neubaus ist als Massivbau konzipiert. Die tragenden Elemente sind die Aussenwände und der Erschliessungskern. Der weit offene und stützenfreie Zugangsbereich wird mit der als Vierendeelträger ausgebildeten Fassade überbrückt. Das Gebäude ist so ausgelegt, dass der MINERGIE-Standard erreicht werden kann.
GF 850m2
Bauherrschaft
Raiffeisenbank Seeland
