mlzd:mlzd:
  • Home
    • News
    • Archive
  • Office
    • Kontakt
    • Portrait
    • Portfolio
    • Team
    • Jobs
    • Referenzliste
  • Projects
    • Auswahl
    • Kultur
    • Öffentlich
    • Wohnen
    • Dienstleistung
    • Städtebau
  • Public
    • Booklets
    • Medien
    • Vorträge
    • Ausstellungen
    • Events
    • Engagement
  • Services
    • Suche
    • Planaustausch
    • datenschutz
    • Impressum
  • Office
  • Referenzliste
Übersicht

sm

  • mlzd sm Verwaltungsgebäude BASPO Situation
  • mlzd sm Verwaltungsgebäude BASPO Perspektive
  • mlzd sm Verwaltungsgebäude BASPO Schnitt

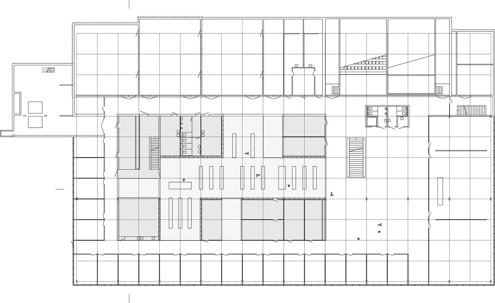
VERWALTUNGSGEBÄUDE BASPO, Erweiterung

CH-Magglingen
Wettbewerb 2. Preis
2001

GF 10’500m2

Bauherrschaft
Bundesamt für Bauten und Logistik BBL, CH-Bern

  • PDF

  • mlzd sm Verwaltungsgebäude BASPO Ansicht
  • mlzd sm Verwaltungsgebäude BASPO Fassade
  • Plan: mlzd sm Verwaltungsgebäude BASPO Schnitt
  • Plan: mlzd sm Verwaltungsgebäude BASPO Situation
  • Bild: mlzd sm Verwaltungsgebäude BASPO Perspektive
  • Plan: mlzd sm Verwaltungsgebäude BASPO Schnitt
  • Plan: mlzd sm Verwaltungsgebäude BASPO Ansicht
  • Plan: mlzd sm Verwaltungsgebäude BASPO Fassade