TRAMDEPOT BURGERNZIEL, Überbauung
CH-Bern
Wettbewerb
2013
Auf dem Areal des ehemaligen Tramdepots an der Thunstrasse in Bern soll eine neue Wohn- und Geschäftsüberbauung entstehen.
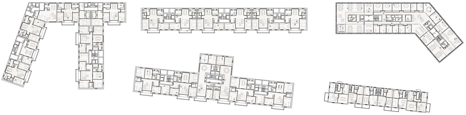
Das freigewordene Stadtgrundstück liegt am beliebten Wohnstandort Kirchenfeld - Schosshalde und bildet die Schnittstelle zwischen der Kernstadt von Bern und deren Anschluss an die Aussenquartiere. Die neue Überbauung knüpft an die bestehenden Körnung an und generiert das Bild einer gewachsenen Struktur. So entsteht eine selbstverständliche Erweiterung, die das Quartier schliesslich bis an die Thunstrasse heranführt.
Durch die Aufteilung des Bauvolumens in einzelne Baukörper sind Durchwegungen möglich, die das Strassennetz weiterführen. Die Formensprache und Setzung der Volumetrien ergibt sich aus der Interpretation und Transformation des unmittelbaren Kontexts und der Rahmenbedingungen.
Durch die Lage an der verkehrsreichen Thunstrasse und auf Basis der gesetzlichen Bestimmungen haben die strassenorientierten Wohnungen auf die Anforderungen des Lärmschutzvorgaben zu reagieren.
Die Gebäudegeometrie ermöglicht es dennoch viele Wohnungen anzubieten, bei denen die Grenzwerte eingehalten sind. Allen gemeinsam ist eine mindestens zweiseitige Orientierung. Wiederkehrende Elemente in der Wohnungstypologie wirken identitätsstiftend, die aber in ihren variablen Anwendung spezifisch auf unterschiedliche Anforderungsprofile reagieren lassen.
Es werden gebrauchstaugliche Wohnungen angeboten, die sich an der Struktur klassischer Typologien orientiert.
Ein grosszügiger Eingangsbereich mit einem direkten Anschluss an die geschlossenen Küchen erschliesst die Wohnungen zentral. Daran anschliessend befindet sich ein grosszügiger, zweiseitiger Wohn- und Essbereich. Der Balkon dient als Erweiterung des Wohnzimmers und ist immer der privaten Seite zugeordnet.
GF 16'000m2
Bauherrschaft
Direktion für Finanzen, Personal und Informatik der Stadt Bern, CH-Bern
