VERWALTUNGSGEBÄUDE MEIELEN, Neubau
CH-Zollikofen
Wettbewerb 2. Preis
2010
Im Rahmen der Zentralisierung von Verwaltungsstellen des Bundes soll das Areal ‚Meielen-Nord’ als polyvalentes Vewaltungszentrum bebaut werden.
In einer ersten Etappe soll dort für das Bundesamt für Informatik und Telekommunikation (BIT) ein Verwaltungsgebäude mit 700 Arbeitsplätzen entstehen.
Das gegebene Areal liegt innerhalb des derzeit gewerblich genutzten Gebietes Meielen und ist über den Bahnhof Zollikofen sowie die S-Bahn-Haltestelle Oberzollikofen bestens durch den öffentlichen Nahverkehr erschlossen. Mit der Bebauung von Meielen Nord erfährt Zollikofen einen nachdrücklichen Wandel. Das Verwaltungsareal bietet die Möglichkeit mit seiner städtischen Dichte und Grösse ein neuer Fixpunkt innerhalb der heterogenen Siedlungsstrukturen zu werden.
Vorgeschlagen wird daher eine Reihung grosser, ähnlicher Volumen, die in der Höhe und Länge eine sanfte Modulation erfahren. Dies ermöglicht sowohl die Zuweisung definierter Aussenraumbereiche, als auch die Anpassung an die geltenden Bebauungs-vorschriften, wie zum Beispiel Grenzverlauf und Höhenbeschränkung. Die Wahl der Rechteckquader mit Innenhof oder Atrium ermöglicht einerseits eine effiziente und auch unter energetischen Gesichtspunkten günstige Erstellung von Büroräumlichkeiten, andererseits vermögen die dadurch grossmassstäblichen Volumen innerhalb der bestehenden Industriebauten Stand zu halten.
Resultierend aus der Reihung von Baukörpern ergibt sich innerhalb des Areals eine bewusst inszenierte, aussenräumliche Zweiseitigkeit, welche eine klare Funktionszuweisung erlaubt. Westlich der Volumen entsteht ein Grünraum, der sich mit dem Gleisraum verbindet und als Biotopfläche wichtige Aufgaben hinsichtlich Ökologie und Nutzerregeneration erfüllt. Ostseitig der Baukörper übernimmt die adressbildende ‚Promenade’ als Hartfläche die Haupterschliessung für Fussgänger, Radfahrer, Autos sowie Lieferverkehr. Im Schnittpunkt der Erschliessungsachsen am Eichenweg weitet sich die Promenade zu einer repräsentativen Platzfläche, die den Ankommenden aus allen Richtungen Orientierung ermöglicht. Zusätzlich akzentuiert wird diese Campus-Mitte durch das höchste Gebäude, das als erste Bauetappe die Räumlichkeiten des Bundesamtes für Informatik und Telekommunikation aufnehmen soll.
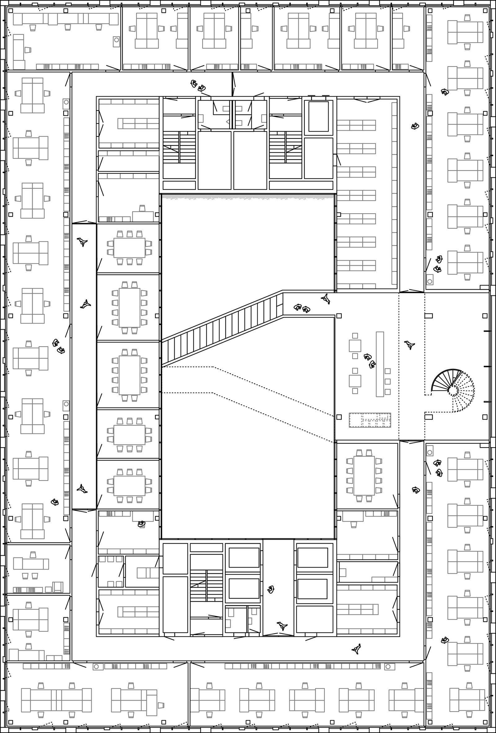
Wie die anderen Volumen des Campus, ist auch das Gebäude der ersten Bauetappe als Hoftypologie entworfen. Das Gebäude entwickelt sich konsequent aus der Typologie als ringartige Struktur. Zu äusserst kommen die Büronutzungen zu liegen, die über einen umlaufenden Korridor erschlossen werden. Letzterer wird indirekt über die verglasten Sitzungszimmer belichtet, die sich ihrerseits dem Hof zuwenden. Auf die Belichtungsverhältnisse innerhalb des ausserordentlich hohen Hofraumes wird auf unterschiedliche Weise reagiert.
Einerseits befinden sich mit den Sitzungszimmern Nutzungen zum Hof, für deren Funktion (z.B. Beamernutzung) das indirekte Hoflicht geradezu optimal ist. Überdies wird die Westwand des Hofes als vertikaler Garten ausgebildet, der sich kaleidoskopartig in den anderen verglasten Hoffassaden widerspiegelt und raumklimatisch wirksam ist. Und letztlich werden innerhalb des umgebenden Rings mehrgeschossige Durchbrüche geöffnet, in welchen sich der innenliegende Hofraum bis an die Aussenfassade ausdehnt.
Diese Einschnitte gewährleisten einerseits eine zusätzliche natürliche Belichtung des Hofes und ermöglichen ausserdem Blickbeziehung von Innen nach Aussen wie auch umgekehrt.
Auf den jeweiligen Geschossen werden die erwähnten dreigeschossigen Durchbrüche als Treffpunktzonen genutzt. Sie sind so angeordnet, dass jede Abteilung, die ihrerseits über mehrere Geschosse organisiert sind, jeweils einen gemeinsamen Treffpunktraum haben. Somit wird ein unkomplizierter Übergang zwischen den Geschossen ermöglicht aber auch ein zwangloser, abteilungsinterner Mitarbeiteraustausch begünstigt. Passarellen, die die Treffpunkträume miteinander über das Atrium hinweg verbinden, ergänzen diesen informellen Weg durch alle Geschosse bzw. Abteilungen und eröffnen eine spektakuläre Erfahrbarkeit des Hofraumes samt seiner mannigfaltigen Blickbeziehungen.
GF: 80'000m2 / 20'000m2 (1.Etappe)
Bauherrschaft
Bundesamt für Bauten und Logistik BBL, CH-Bern
