bbb

  • mlzd_bbb_Erweiterung_Bruettelenbad_Visualisierung
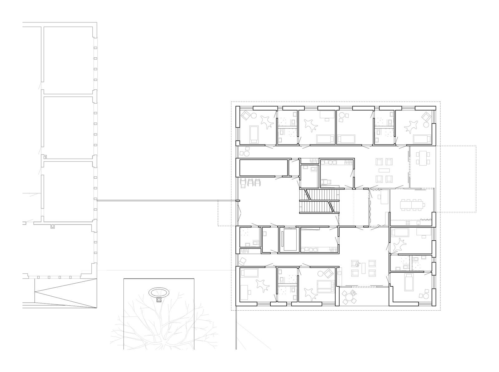
  • mlzd_bbb_Erweiterung_Bruettelenbad_Grundriss
  • mlzd_bbb_Erweiterung_Bruettelenbad_Modell

ERWEITERUNG UND INSTANDSETZUNG BRÜTTELENBAD, Um- und Neubau

CH-Brüttelen
Wettbewerb
2018

Die Gebäudegruppe Brüttelenbad befindet sich nahe der Ortschaft Brüttelen in einem Tal südlich des Bieler Sees. Mit einem Neubau soll die bestehende Anlage optimal ergänzt werden, um der Nutzung als Heim- und Arbeitsstätte für Menschen mit Beeinträchtigung gerecht zu werden.

Aus dem Gebäudeensemble wird die Turnhalle aufgrund seiner ungenügenden Nutzungsvariabilität zum Abriss vorgeschlagen. Damit kann östlich des Hauptgebäudes ein präzise gesetzter Neubau für 3 Wohngruppen angegliedert werden. Gleichzeitig werden die unterschiedlichen Nutzungen entflechtet und es entsteht sowohl im Aussenbereich als auch in der inneren Gebäudestruktur eine Abstufung vom Öffentlichen zum Privaten. So werden die extern zugänglichen Bereiche von Saal und Ateliers auf Strassenniveau in der Scheune angeordnet. Das Hauptgebäude bleibt, mit seiner Orientierung zum tiefergelegten Platz, hauptadressbildendes Volumen und beherbergt sinngemäss die Verwaltung und gemeinschaftliche Nutzungen. Der Neubau mit der privaten Nutzung der Unterkünfte schliesst direkt an das untere Gartenniveau an. 
Der quadratische Neubau folgt in seiner Dachstruktur, bezugnehmend auf die bestehende Ensemblestruktur, dem Talverlauf.

GF 4'375m2

Bauherrschaft
Stiftung Brüttelenbad, CH-Brüttelen


  • mlzd_bbb_Erweiterung_Bruettelenbad_Modell_Vogelper

Diese Webseite verwendet Cookies, um Ihnen den bestmöglichen Service zu gewährleisten. Wenn Sie auf der Seite weitersurfen stimmen Sie der Cookie-Nutzung zu.

Ich stimme zu