HAUPTSITZ GVB, Erneuerungskonzept
CH-Bern
Studienauftrag
2008
Der Firmensitz der Gebäudeversicherung Bern entspricht – obwohl jüngeren Datums – nicht mehr den zukünftigen Anforderungen.
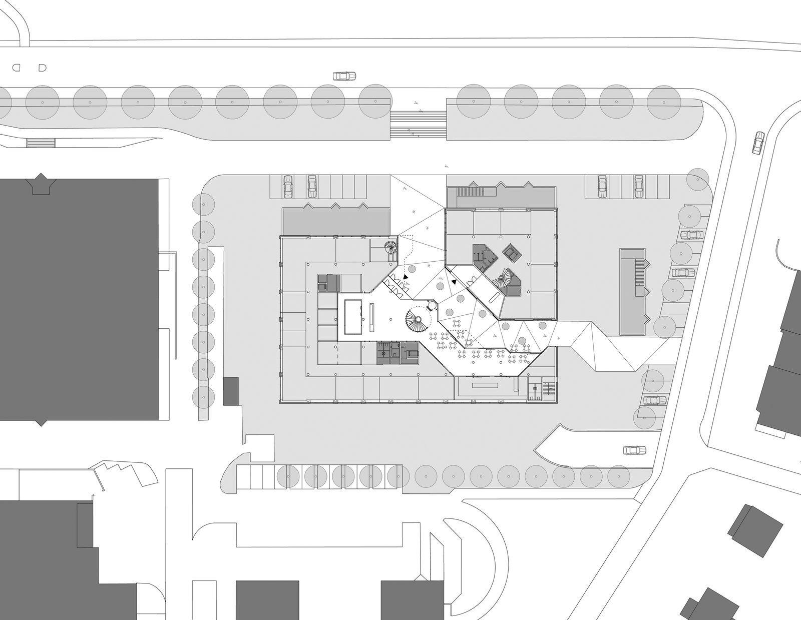
Auf Grund moderner Archivierungsmöglichkeiten werden innerhalb des Volumens grosse, allerdings unbelichtete Archivflächen frei. Unser Konzept schlägt vor, diese frei werdenden Flächen über einen Lichthof zu belichten und nutzbar zu machen. Die dadurch gewonnen Flächen machen es möglich, die Versicherung in nur einem der bisher zwei Gebäudeteile unterzubringen. Der kleinere, bisher über ein Glasatrium angebundene, zweite Gebäudeteil kann nun abgetrennt und fremdvermietet werden. Das Glasatrium ist somit hinfällig und wird entfernt. Der Zutritt zu beiden Gebäuden erfolgt dadurch über einen offenen Eingangshof, die neuen Fassaden unterstützen die räumliche Vielfalt dieses Bereiches.
GF= 25'000 m2
Bauherrschaft
GVB, Gebäudeversicherung Bern, CH-Bern
