DIENSTLEISTUNGSGEBÄUDE ZOLLSTRASSE, Neubau
CH-Zürich
Wettbewerb
2014
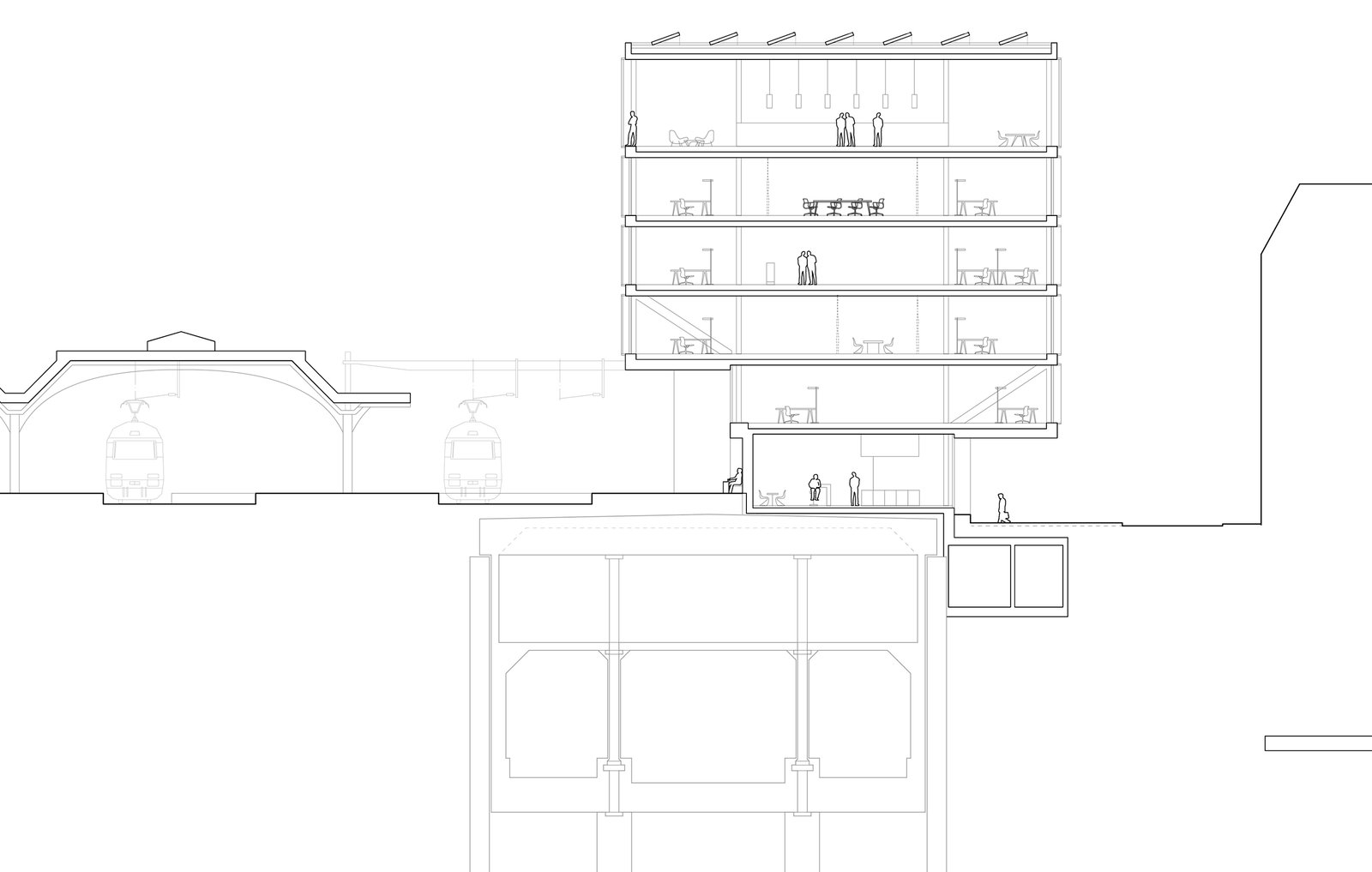
Diesem Wettbewerb für zwei Bürogebäude direkt am Perron 18 des Hauptbahnhofs in Zürich ist separater ein städtebaulicher Wettbewerb vorangegangen, in dem die Setzung sowie Körnung der Gebäude in Form eines Gestaltungsplans festgelegt wurde.
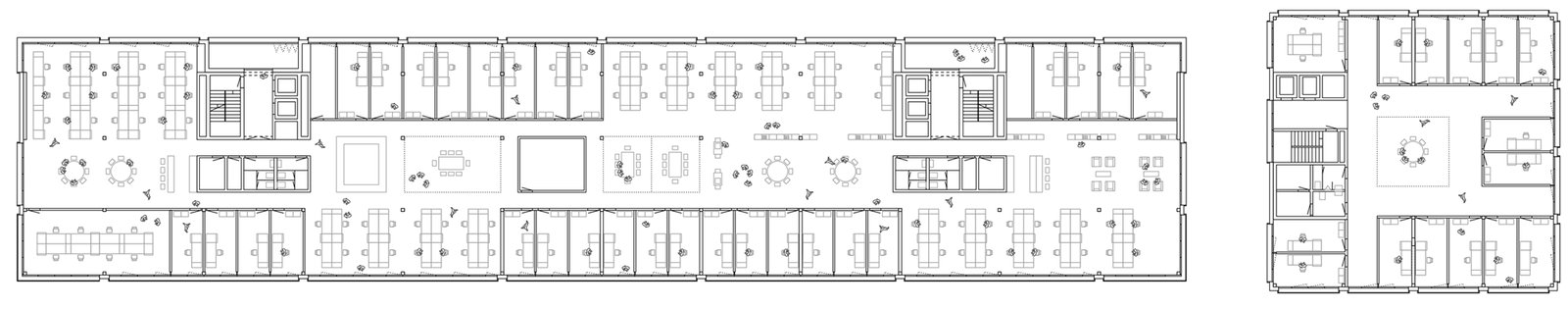
Um den Strassenraum der Zollstrasse zu beleben sieht die Nutzung im Erdgeschoss Dienstleistungsflächen vor, in den oberen Geschossen hochflexible Büros. Der Kopfbau bildet als Beginn des neuen Entwicklungsgebietes einen Auftakt, welcher den Bereich der Museumsstrasse prominent überblickt und den östlichen Eingang zur Zollstrasse bildet. Die verschiedenen Nutzungen sind sowohl beim Kopf- als auch beim Längsbau deutlich per Geschoss und Gebäude voneinander getrennt.
Die Fassaden der beiden Gebäude werden als Varianten des gleichen Themas gezeichnet. Im Kopfbau unterstreichen die grossformatigen Rahmen die allseitige Orientierung sowie das Erdgeschoss und die Dachkrone. Im Längsgebäude wird in der Fensterkomposition bewusst der Massstab des Gleisfeldes, insbesondere der Zugkompositionen, aufgegriffen. Zur Zollstrasse hin werden die gleichen Elemente verwendet, jedoch in kleineren Formaten.
GF 11’400
Bauherrschaft
SBB, SBB Immobilien, CH-Bern
Zusammenarbeit
Atelier Kempe Thill, NL-Rotterdam
