MODERNISIERUNG DEUTSCHES MEERESMUSEUM STRALSUND, Neubau
D-Stralsund
Wettbewerb
2017
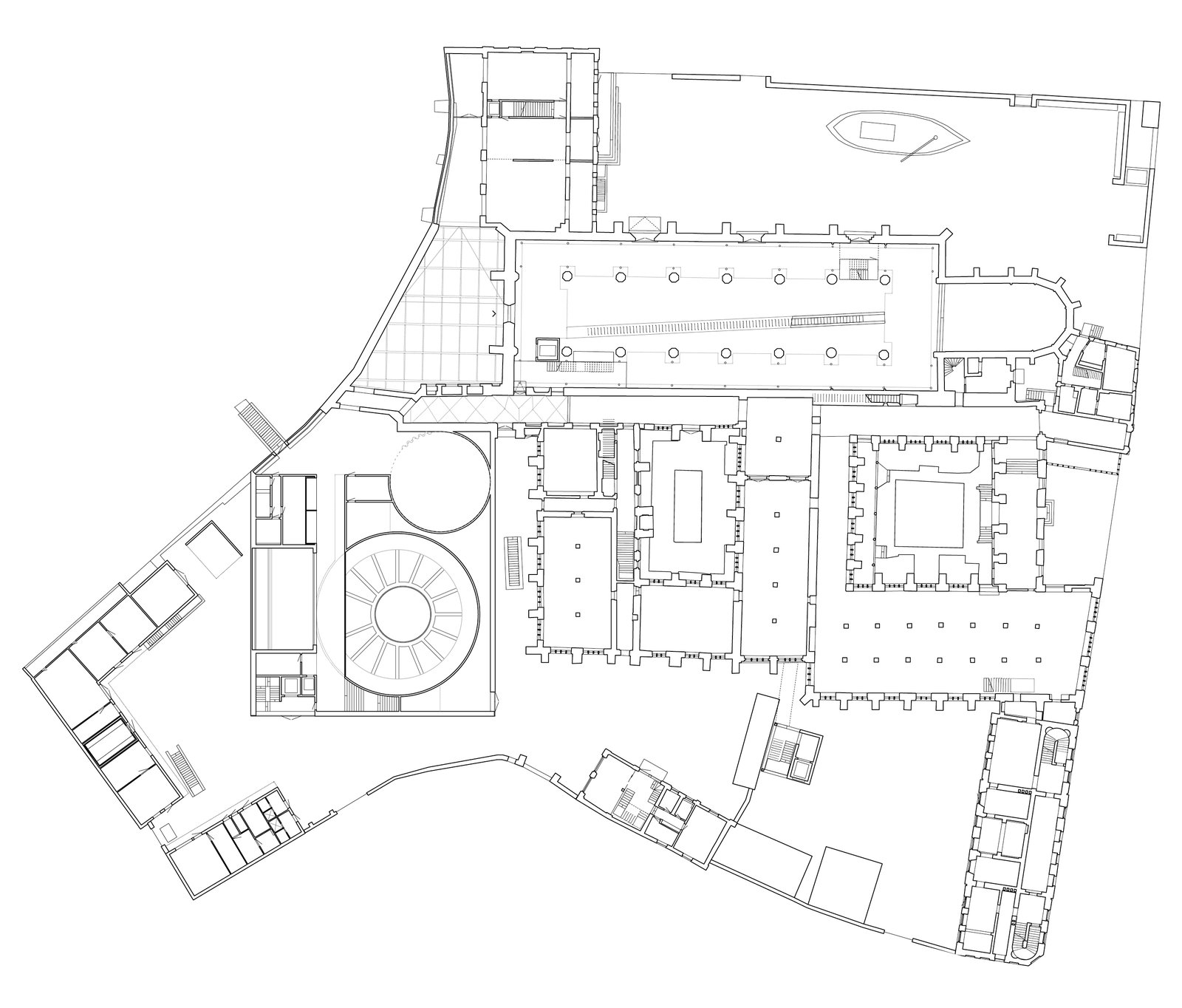
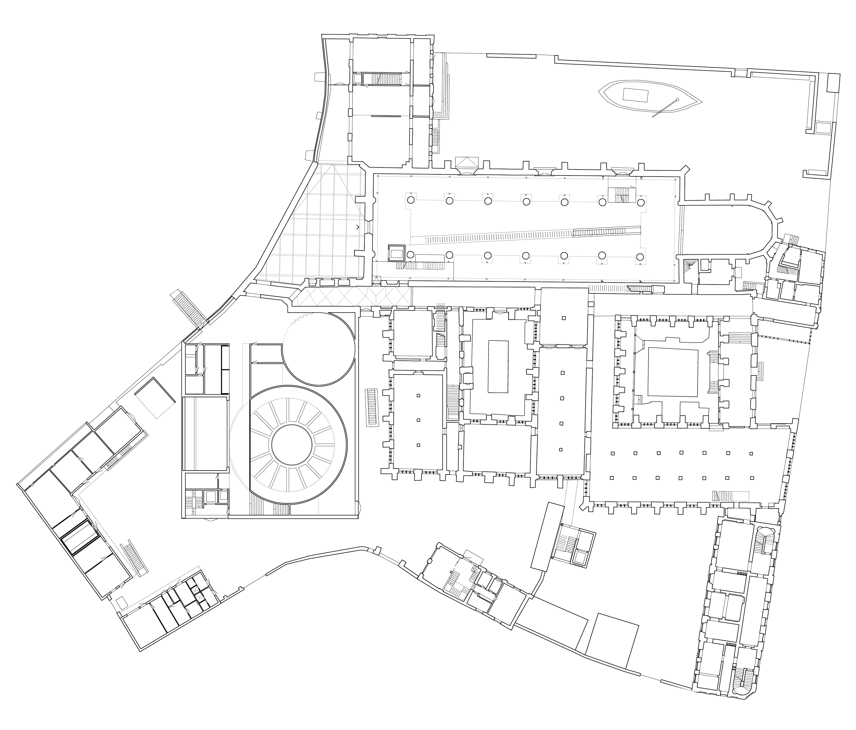
Inmitten der Innenstadt Stralsund, zwischen Backsteinhäusern gelegen, befindet sich das Haupthaus des Deutschen Meeresmuseums, welches mit über 200'000 Besuchern eines der bedeutendsten Museen Norddeutschlands ist.
Die Bauaufgabe war, einen Erweiterungsbau zum bestehenden Haupthaus zu planen und unter Berücksichtigung der historisch bedeutsamen Umgebung in direkter Nachbarschaft zur Stralsunder Altstadt, ein herausragendes Gebäudeensemble zu kreieren.
Das Projekt schlägt die Konzentration der neuen Attraktionen des Deutschen Meeresmuseums in Strahlsund in einem grosszügigen und gleichzeitig kompakten Neubau vor. Dieser wird als ergänzendes Element an der Südwestseite der bestehenden Klosterbauten hinzugefügt. Von dem neuen Foyer im Bereich des Westhofes aus wird der Rundgang durch den Bestand über die Katharinenkirche bis in den Neubau geleitet. In der Kirche wird das vorhandene Stabwerk neu geordnet und durch eine Rolltreppe ergänzt, die den neuen Museumsrundgang beginnt, der im Neubau endet. Zentrum dieses Baus ist das Grossfischaquarium, durch welches der Besucher mit einem Lift in den Aquarienbereich herunterfahren kann. Mit der flachen Kuppel, die über das zentrale Rondell gespannt ist, erhält auch dieses Geschoss eine beherrschende Mitte. Durchs Auge der Plattform hinauf ins Grossfischaquarium bietet sich ein atemberaubender Blick.
Die Fassaden der Neubauten bestehen aus Backstein, das sich in den Bestand aus Backsteingotik eingliedert. Die an Sedimentschichten erinnernde Bänderung des Neubaus nimmt die Proportionslinien der benachbarten Klostergebäude auf.
GF 10’900m2
Bauherrschaft
Deutsches Meeresmuseum, DE-Stralsund
