NATURHISTORISCHES MUSEUM DES KANTON TESSIN, Neubau
CH-Locarno
Wettbewerb, 1.Preis
2023 –
Das naturhistorische Museum des Kanton Tessin wurde 1853 gegründet und ist heute in Lugano beheimatet. Neu wird das Museum in einem ehemaligen Kloster in unmittelbarer Nähe des historischen Zentrums von Locarno eingerichtet und um einen Neubau erweitert.
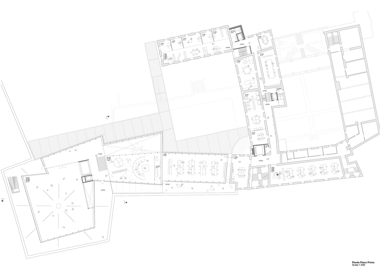
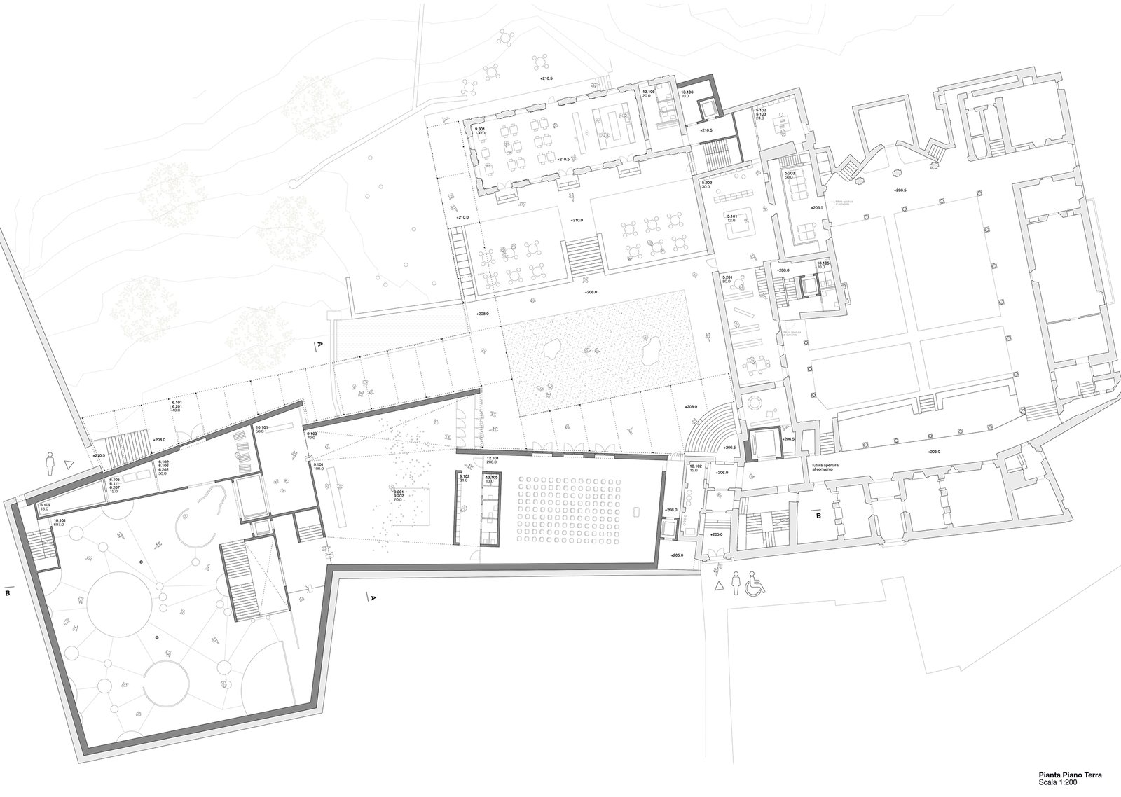
Alt- und Neubau werden über einen hofartigen Aussenraum zueinander in Beziehung gesetzt. Dieser Platzbereich wird durch eine Pergola gefasst und erinnert in seinen Dimensionen an den bestehenden Klosterhof. Er bildet das räumliche Gelenk und dient als Verteiler in alle Bereiche und Funktionen des Museums.
Der historische Bestand des Klosters, welcher mehrheitlich aus dem 17. Jahrhundert stammt, erhält dabei Funktionen wie die des Haupteingangs, des Cafés und der Bibliothek – ohne dass dabei tiefe Eingriffe in die bestehende Gebäudestruktur vorgenommen werden müssen.
Richtung Westen erstreckt sich sodann ein viergeschossiger Neubau, welcher die performativen Räume eines modernen Museumsbetriebs wie Ausstellungssäle, Museumspädagogik, Auditorium und Depots enthält.
Die grosse Gartenanlage, die das Ensemble hangaufwärts umgibt, wird öffentlich zugänglich gemacht und kann auch ausserhalb der Öffnungszeiten als Durchwegung in Nord-südlicher Richtung begangen werden.
Die das Grundstück bereits heute umspannende Umfassungsmauer wird charakterisierend für die Architektur des Neubaus. Die daraus abgeleitete Abstraktion und die Fassadengestaltung ohne sichtbare Fensteröffnungen verstärken die Wahrnehmung des feingliedrigen Bestands und seiner Bedeutung als Hauptgebäude.
Durch subtile Anpassungen des Volumens und das Auffächern von Wandscheiben wird der Neubau in seiner Massstäblichkeit moduliert und fügt sich harmonisch in die bestehende ortsbauliche Situation ein.
GF
6’000m2 (Neubau) + 3’400m2 (Bestand)
Bauherr
Hochbauamt des Kanton Tessin, CH-Bellinzona
Zusammenarbeit
Buzzi studio d’architettura, CH-Locarno
