OPER IN LAUSANNE, Erweiterung
CH-Lausanne
Studienauftrag
2005
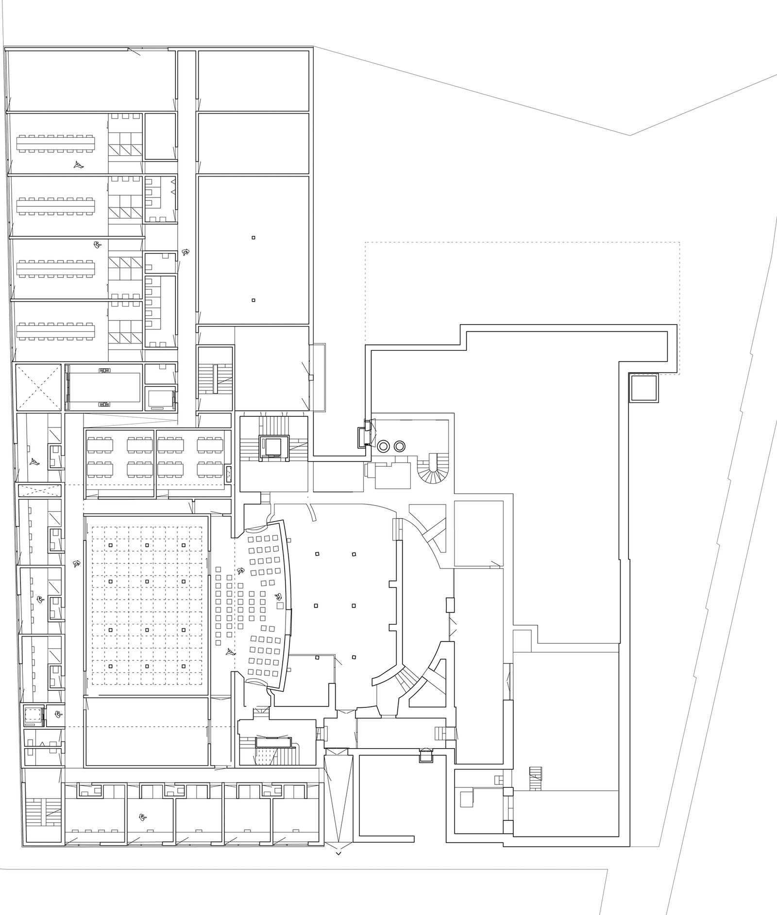
Der neue Anbau ergänzt und erweitert das bestehende Gefüge von Anbauten, Seitenflügeln und Aufbauten.
Diese Bauten gliedern und strukturieren den Anbau-Körper und verleihen ihm die gewünschte Identität. Der Proberaumflügel bricht zum Park hin die Symmetrieachse und verwebt sich mit dem Aussenraum. Das Restaurant wird westseitig auf die neue Platzfläche hin erweitert.
Die bestehende Eingangsfassade wird in seiner äusseren Erscheinung soweit möglich in seine Ursprungssituation zurückgeführt. Eine neue Treppenanlage sowie grossflächige Verglasungen gewähren eine angemessene und repräsentative Zugänglichkeit und öffnen das Foyer im sprichwörtlich gegen die Stadt hin. In seiner Erscheinung hebt sich der neue Anbau bewusst vom bestehenden Bau ab. Eine abstrakte, perforierte Hülle, bestehend aus unterschiedlich gelochten, bronzefarbig anodisierten Aluminiumplatten, kleidet den Körper. Die pixelartige Lochung versorgt die dahinter liegenden Räume mit ausreichend Tageslicht und gewährt spannende Ausblicke nach Aussen. In der Nacht ändert sich das Verhalten des Gebäudes, indem es aus den Büroräumen leuchtet zeigt es das Leben dahinter. Dieser Effekt wird im Bereich des Bühnenturms durch das Anbringen von Leuchten in der Hinterlüftungsebene noch verstärkt: Findet eine Abend-Vorführung statt leuchtet das Gebäude durch die perforierten Platten hindurch wie eine Krone und setzt, einem Firmament gleich, ein unvergessliches Zeichen im Lausanner Nachthimmel.
GF 10'000m2
Bauherrschaft
Ville de Lausanne, direction des travaux - service d'architecture, CH-Lausanne
