STADTTHEATER SOLOTHURN, Erneuerung
CH-Solothurn
Wettbewerb
2009
Das Stadttheater Solothurn ist in mehreren, einander teils zuwider laufenden Etappen entstanden. Die beengten Verhältnisse erschweren die Anpassung des kleinteiligen Gebäudeensembles an die Anforderungen eines zeitgemässen Theaterbetriebes.
Um die Einbettung in das Gefüge der Altstadt mitsamt ihren kulturellen Synergien zu bewahren, soll die Gebäudevolumetrie möglichst unverändert bleiben. Als wesentlich für das Stadtbild erachten wir auch die Dachlandschaft und die Materialität der Fassaden. Die mehrmals veränderte innere Struktur der Gebäude hingegen fassen wir als veränderbar auf. Sie bedarf einer tief greifenden programmatischen und technischen Anpassung an die Bedürfnisse des modernen Theaters.
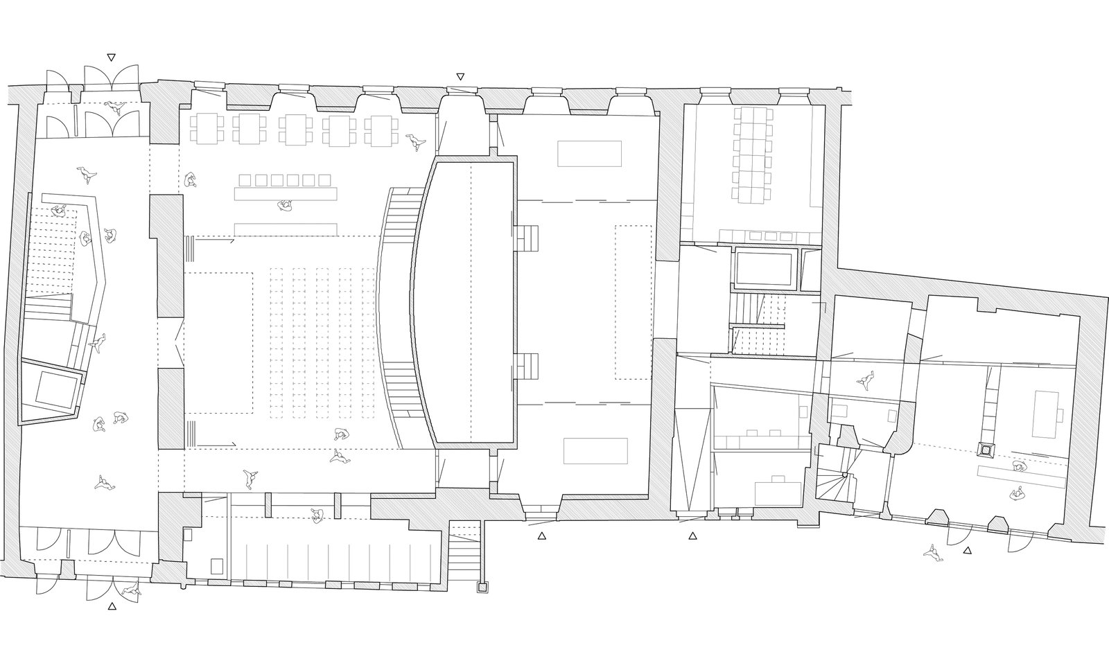
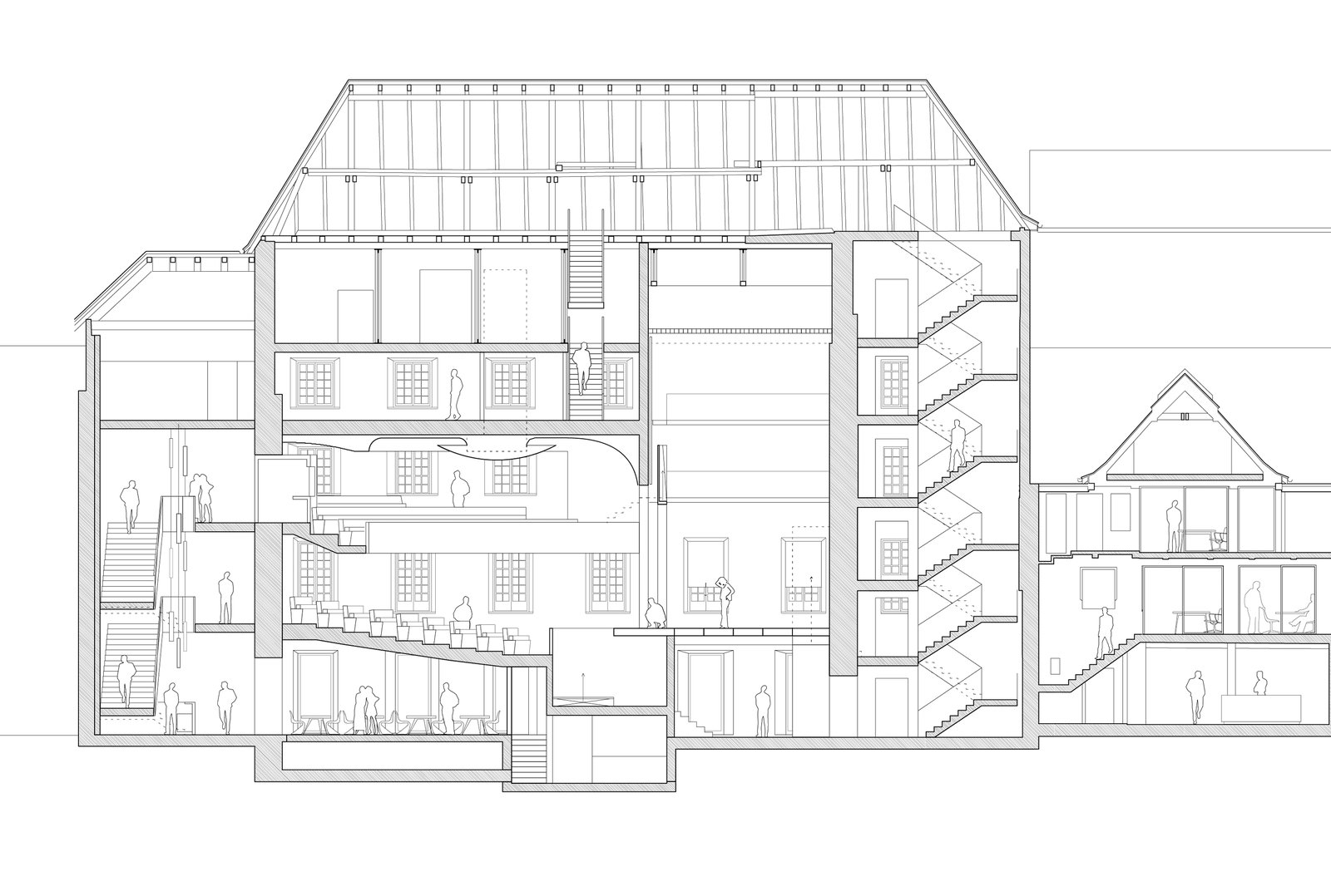
Der bestehende Theaterraum wird um 180° gedreht. Dadurch können alle Funktionen des Theaters und des Backstagebereiches unter dem grossen Dach des Hauptgebäudes vereint werden. Das Krieg-Haus wird als denkmalgeschütztes Gebäude von tiefen Eingriffen verschont. Nahe am Backstagebereich gelegen, ist es für die Büros der Administration prädestiniert. Da die Flächen im Erdgeschoss knapp bemessen sind, schlagen wir vor, den Theatersaal auf die Ebene des ersten Geschosses anzuheben. Der neue Theatersaal ist das zentrale Element des Projekts. Die Anzahl der Ränge wird ohne Verzicht auf Sitzplätze auf einen Balkon beschränkt. Mit der Spiegelung des heutigen Grundrisses kommen Eingang und Theaterfoyer in das Haus Theatergasse 16 zu liegen. Das Erdgeschoss kann so flexibel als Café, Bar, Veranstaltungsraum oder Probebühne genutzt werden. Dadurch wird das Gebäude auch tagsüber zum öffentlichen Anziehungspunkt, wird die Institution mit dem städtischen Leben vernetzt. Mit einem zweiten Eingang von der Fischergasse her kann das Entrée zusätzlich zur halböffentlichen Passage aufgewertet werden.
GF 3'300m2
Bauherrschaft
Einwohnergemeinde der Stadt Solothurn, CH-Solothurn
