SCHLOSS RAPPERSWIL, Umbau
CH-Rapperswil-Jona
Wettbewerb
2018
Durch einen Umbau und einer Neuinszenierung soll das historische Schloss Rapperswil zu einem Veranstaltungsort für kulturelle, gesellschaftliche und touristische Anlässe werden.
Der Entwurf begegnet der Aufgabe durch selbstbewusste und wesentliche aber gleichzeitig eher ‚leise’ und unaufgeregte Massnahmen. Diese Eingriffe sind in ihrer Gestaltung, Konstruktion und Materialisierung erkennbar modern – und sind gleichwohl konziliant gegenüber dem Bestand.
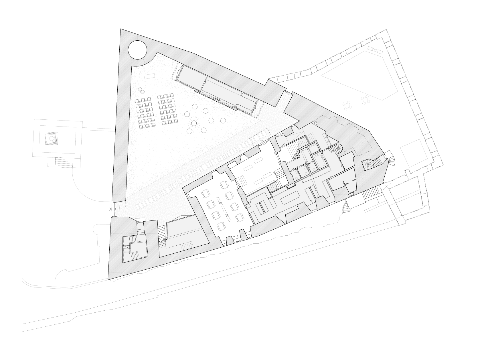
Hat der Besucher den Hauptzugang des Palas' erreicht wird durch die räumliche Kompression des Portals Spannung aufgebaut und weitet sich beim Begehen der Treppe nach und nach, durch Lichtschlitze dringt das Aussenlicht. Ähnlich einer barocken Treppeninszenierung à la Balthasar Neumann führt der Weg aus dem Dunkel ans Licht. Die Stützen und Balken erzeugen aber nicht nur den Treppenraum, die Lichtstimmung und somit auch die Orientierung. Die Oberflächen rund um den Treppenraum führen die Reduktion auf Stein und Beton fort. So werden in weiten Bereichen die historischen Mauerwerke freigelegt, die neuen Böden, Stützen und Balken erhalten verschiedene Betonhaptiken (geschliffen, glatt, gestockt). Die reduzierte Materialität im Treppenraum verstärkt die Inszenierung der daran angeschlossenen Restaurations-, Veranstaltungs- und Ausstellungräume.
Die Lage der heutigen Buvette erscheint auch auf den zweiten Blick logisch. Sie steht im wichtigen funktionalen Zusammenhang mit der Küche, nur die heutige Position kann diesen Umstand zufriedenstellend gewährleisten. Dem durch die zusätzliche Lagerfläche etwas längeren Gebäude wird mit drei Pfeilern aus Kalksteinbeton sowie dem darüber liegenden Balken zu einem selbstbewussteren Ausdruck verholfen.Die den Besucher weiterleitende Unauffälligkeit des heutigen Lagers ist die erklärte Absicht des Neubaus an dieser Stelle. Wenn man den Schlosshof betritt hat man das Gebäude bereits passiert.Diese schlichte Metallkonstruktion wird keine unangemessene Aufmerksamkeit erzeugen, der Zuschauer soll sich dem Palas und dem dortigen Haupteingang zuwenden. Das Dach samt seiner Unterkonstruktion bleibt bestehen. Gleichzeitig wird die Konstruktion der Treppen, des Lagers und des Wehrgangs erneuert. Ein Stabwerk aus Betonbalken und einer –stütze übernehmen die Statik und zeichnen gleichzeitig optisch die Dimensionen des Wehrgangs nach
GF 800m2
Bauherrschaft
Ortsgemeinde Rapperswil-Jona
CH-Rapperswil-Jona
