STADTMUSEUM IM WILHELMSPALAIS, Neubau
D-Stuttgart
Wettbewerb
2009
Das als Stadtbibliothek genutzte Wilhelmspalais an der Konrad-Adenauer-Strasse soll als Stadtmuseum zu einem weiteren Baustein der Stuttgarter Kulturmeile werden.
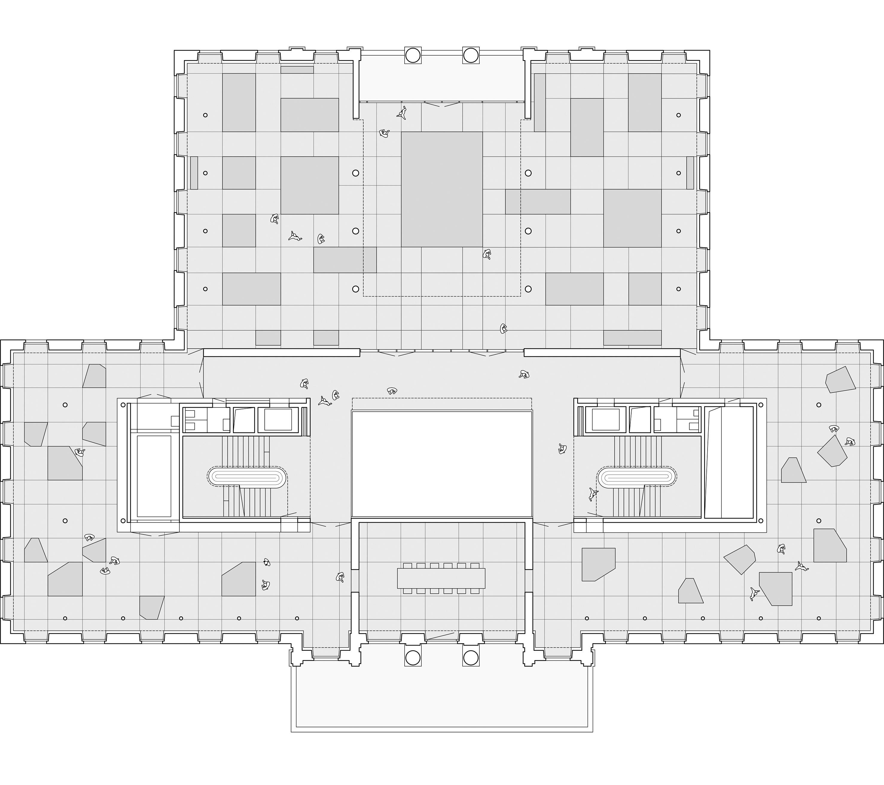
Neben der Gebäudehülle von G. Salucci sind die Einbauten als hervorragende deutsche Nachkriegsarchitektur denkmalgeschützt. Aus dem Abwägen zwischen Denkmalschutzbelangen und heutigen Gebäudeanforderungen entsteht ein Konzept, das sich radikal der Stadt zuwendet, die räumlichen Zusammenhänge klärt und Widersprüche zwischen Innen und Aussen klärt und bereinigt. Im Stadtraum wird das Museum nun als Gegenüber des neuen Kunstmuseums erkannt und durch die Treppenanlage mit dem entstehenden Boulevard der Konrad-Adenauer-Strasse verknüpft.
Im Innern führen die zwei seitlichen Treppen und der über alle Geschosse durchgehende Lichthof eine neue Ordnung ein. So entsteht ein Zentrum im Haus, an dem sich der Besucher orientieren kann und das vertikale Sichtverbindungen ermöglicht.
GF: 6'000m2
Bauherrschaft:
Landeshauptstadt Stuttgart
Zusammenarbeit
Gasser Derungs, CH-Chur
