„BEMOTION BASE“ BERN, Neubau
CH-Bern
Wettbewerb
2017
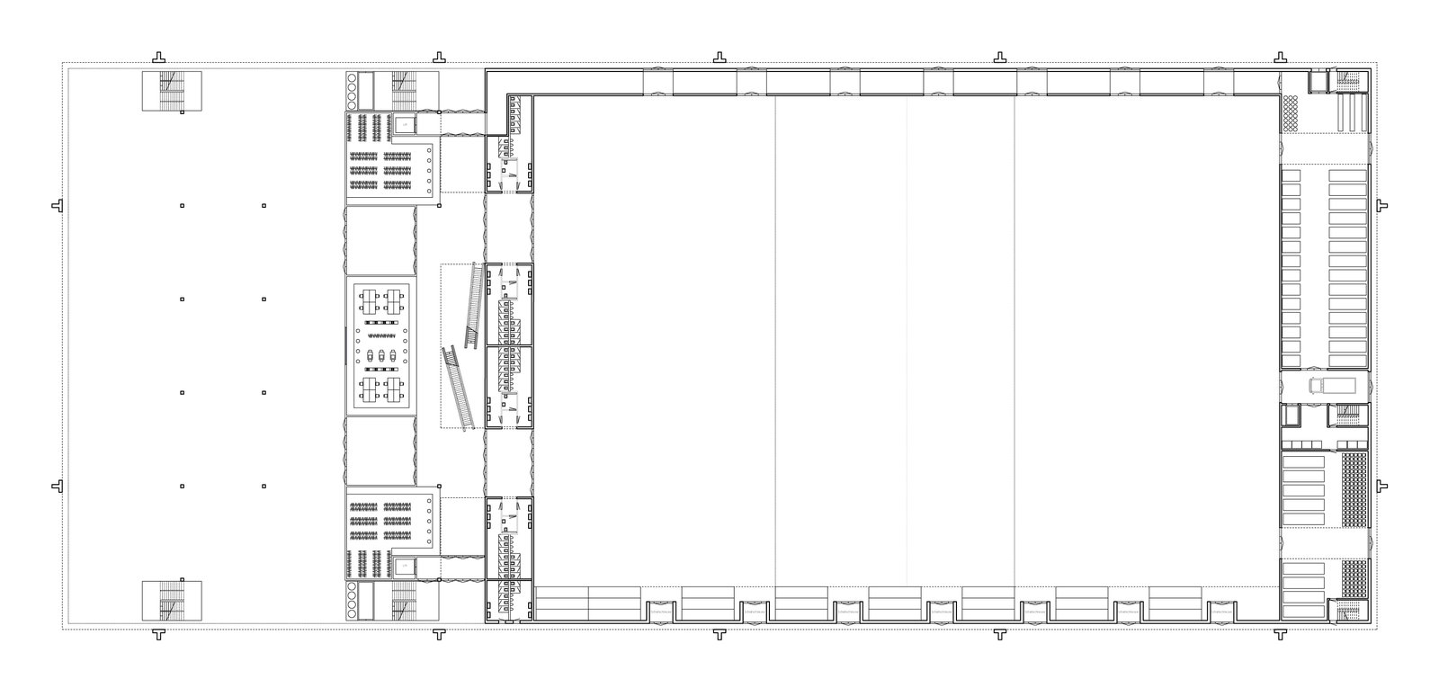
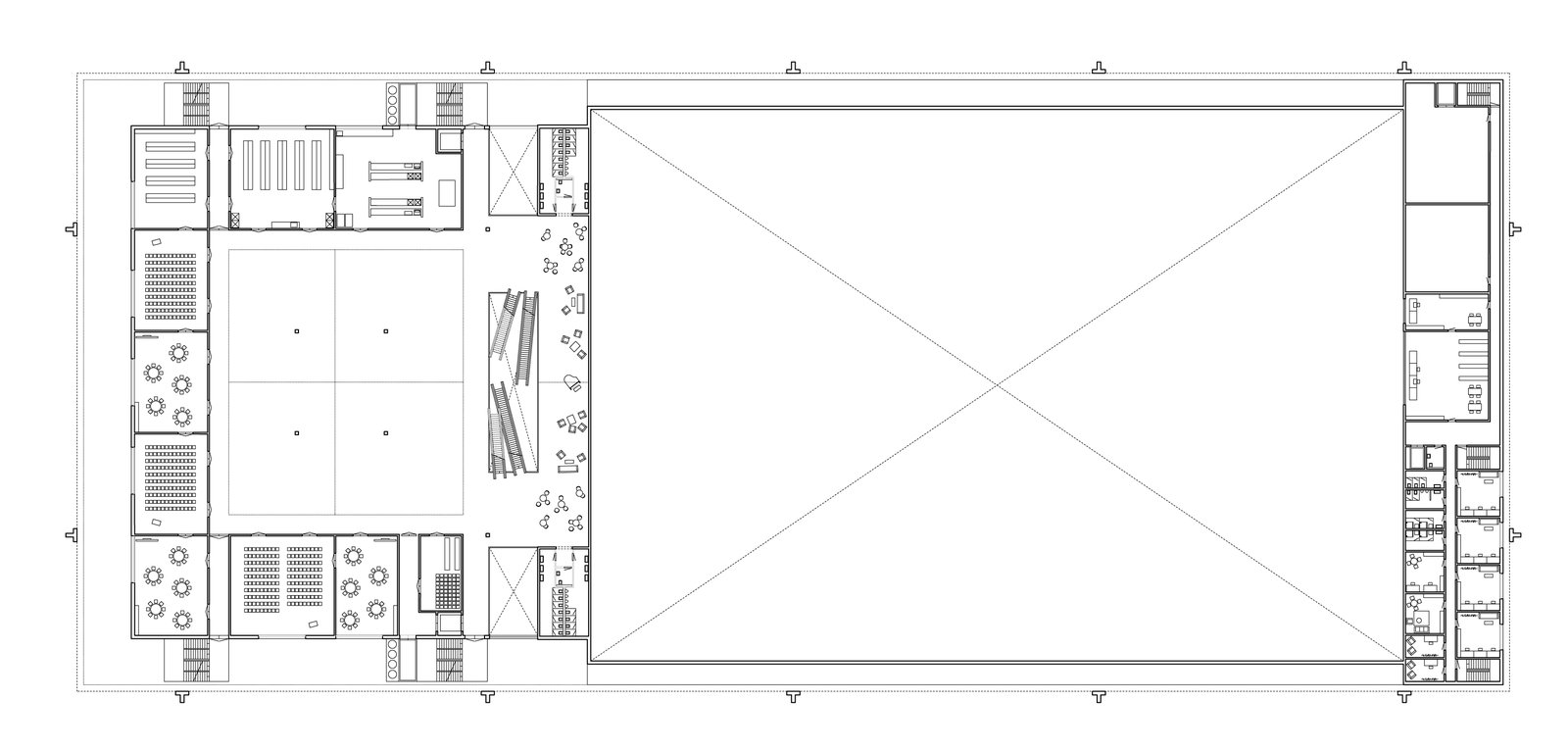
Die bestehende Halle 4 der BernEXPO an der Papiermühlestrasse wird mit einem Kongresszentrum und einer neuen Messehalle ersetzt.
Prominent am Eingang des Messegeländes gelegen, soll der Ingenieurbau mit einer markanten Stahlstruktur als starker Identitätsträger am Ort in Erscheinung treten.
Die neue Messehalle setzt sich bewusst entlang an die Papiermühlestrasse um den Strassenraum mit seiner Baumallee zu stärken und andererseits einen Zwischenraum zur bestehenden Messehalle zu schaffen, der je nach Betriebszustand der BernEXPO Parkplatz oder Messeplatz ist.
Das Gebäude ist in drei funktionale Bereiche geteilt, dem Vorplatz mit angeschlossenem mehrgeschossigen Foyer, dem auf zwei Ebenen organisierten Kongressbereich, der grossen Multifunktionshalle mit Backstage und Lagerbereich. Als überdeckter Aussenraum bietet der Vorplatz eine flexibel Nutzbare Fläche, die als Ausstellungsfläche oder als Versammlungsbereich genutzt werden kann. Bei Eintritt in das Gebäude bildet ein mehrgeschossiges Foyer das Bindeglied zwischen beiden Hauptnutzungsbereiche und ermöglicht durch dreiseitigen Zugang eine komplette Trennung der Besucherströme für das Kongresszentrum und die Messehalle.
Grösse 19'400 m2
Bauherrschaft
BERNEXPO GROUPE, CH-Bern
