BILDUNGSZENTRUM UNTERENTFELDEN, Gesamtsanierung
CH-Unterentfelden
Studeinauftrag
2009
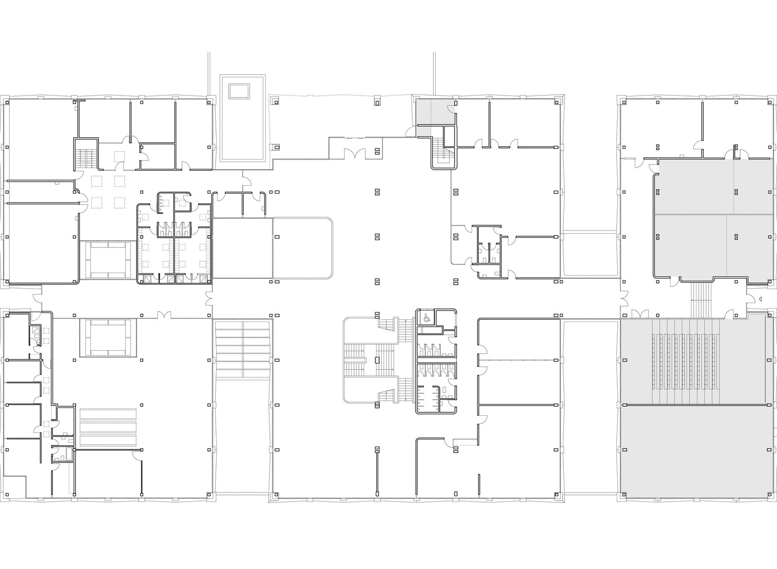
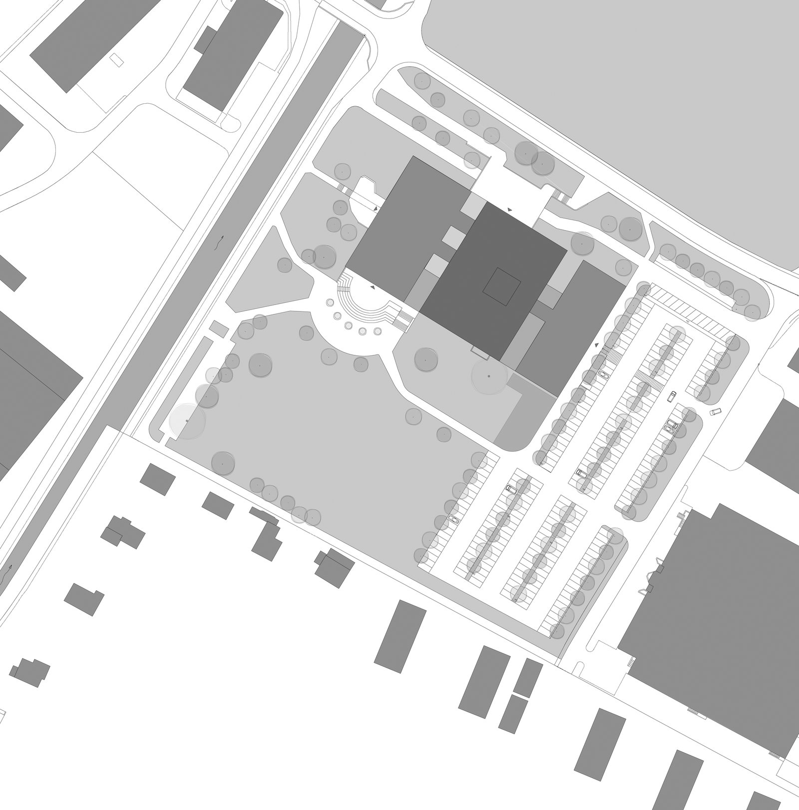
Das Bildungszentrum liegt am südlichen Ortsrand von Unterentfelden. Die Schulanlage des Bildungszentrums wurde vor über 30 Jahren gebaut und steht nun vor seiner ersten grosszyklischen Instandsetzung. Das Bildungszentrum beherbergt sowohl die Bau- als auch die Gastroschule des Kantons Aargau.
Mit dem Sanierungskonzept wird der Auftritt des Gebäudes komplett erneuert. Damit werden die Innenräume heller und behaglicher. Die Fassade wird neu auch Installationsebene - Lüftung, Heizung und Elektro werden hier geführt. Dies erlaubt, die strukturellen Eingriffe im Gebäude zu minimieren.
GF 14'000m2
Bauherrschaft
Departement Finanzen und Ressourcen Kanton Aargau, CH-Aarau
