DREIFACHTURNHALLE STERNMATT, Neubau
CH-Baar
Wettbewerb
2019
Die Schule Sternmatt 2 befindet sich am südlichen Rand des Gemeindegebietes von Baar (ZG). Die neue Dreifachsporthalle soll anstelle der heutigen Einfachturnhalle realisiert werden und den Bedarf an zusätzlichen Sportmöglichkeiten der Gemeinde Baar abdecken.
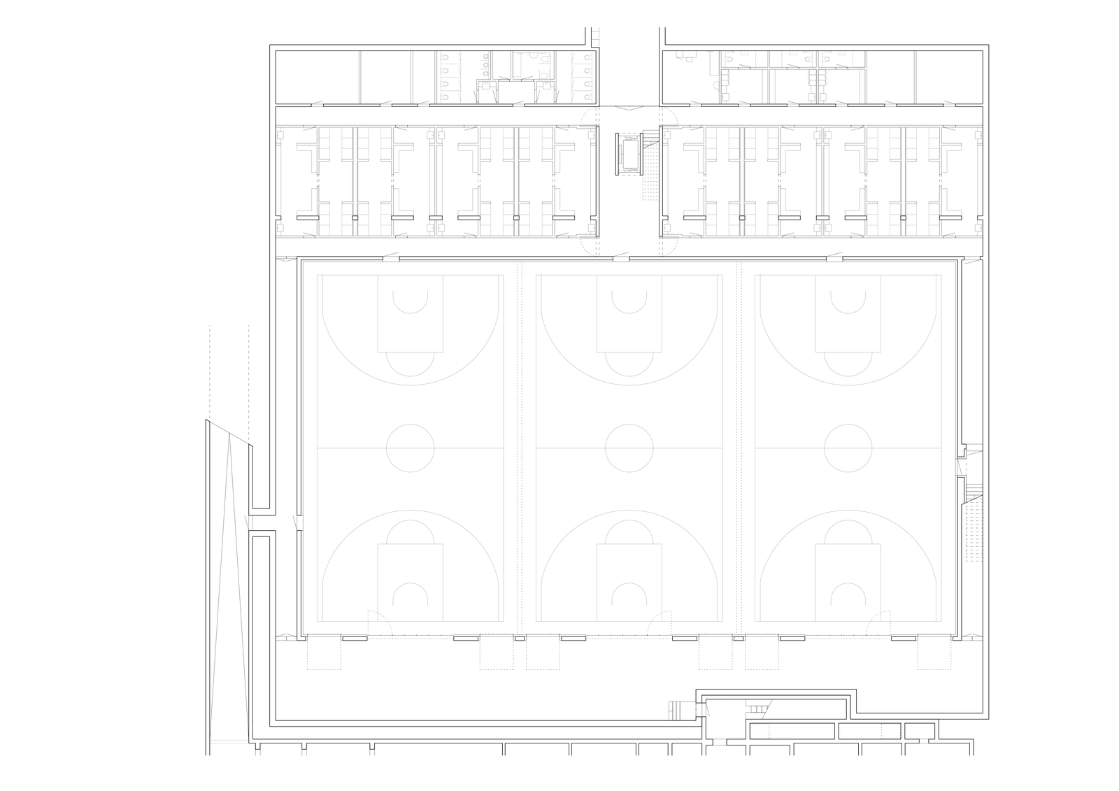
Die städtebauliche Positionierung der neuen Dreifachsporthalle bezieht sich auf das vorhandenes Ordnungssystem zweier Wegachsen, die sich lotrecht kreuzen und eine verbindend-ordnende Funktion übernehmen: einerseits werden die Schulen Sternmatt1 und Sternmatt 2 über den Sternmattweg miteinander verbunden, andererseits erschliesst eine Wegverbindung zwischen der Inwilerstrasse und dem Inwilerkirchweg das Schul-und Sportareal von der Strasse her. Durch die vorgeschlagene Setzung des Baukörpers wird dieses Ordnungssystem nicht in Frage gestellt sondern gestärkt, in dem der Kreuzungspunkt der Wege den logischen Eingang zur neuen Sporthalle bildet und somit den bestehenden Eingang zum Schulhaus Sternmatt 2 rund um den existierenden Schulhof ergänzt.
Der Entwurf wird durch markante Blöcke aus Beton und Klinkersteinen geprägt, zwischen denen sich im Erdgeschoss das Foyer, der Hallenraum mit Tribüne und diverse Aussenraumflächen frei aufspannen. Die Steinblöcke nehmen Nutzungen, wie Treppe, Lift, Toiletten, Küche, Lagerräume und Schächte auf, wodurch die Zwischenzonen umso ruhiger gehalten werden können. Auf den Blöcken ruht eine ringartige Fachwerk-Stahlkonstruktion, welche die Dachträger abfängt. Die Dimensionierung des Tragwerks ist hierbei so gewählt, dass es keiner zusätzlichen Stützen bedarf. In Kombination mit einer maximal reduzierten, rahmenlosen Glasfassade entsteht hierdurch eine grosse visuelle Durchlässigkeit mit der Idee, den Aussenraum fliessend in den Innenraum übergehen zu lassen und somit den Bezug zur Umgebung beidseitig (Aussen-Innen / Innen-Aussen) zu stärken. Ein allseitig auskragendes Betondach bietet den notwendigen Schutz vor Blendung in der Halle und ermöglicht in warmen Sommertagen das Verweilen im kühlen Schatten bei gleichzeitigem Blick auf die Aussensportfelder.
GF 3’721 m2
Bauherrschaft
Einwohnergemeinde Baar, Abteilung Planung/Bau
CH-Baar
