PROVINCIEHUIS OOST-VLAANDEREN, Erweiterung und Neubau
BE-Gent,
Studienauftrag 2.Preis
2011
Die dezentralen Verwaltungseinrichtungen der Regierung Ost-Flanderns sollen im Zentrum der Stadt Gent einen gemeinsamen Verwaltungssitz erhalten. Der prominent gelegene ‚Urbis Complex’, aus dem Jahr 1994, soll zu diesem Zweck umgenutzt und erweitert werden.
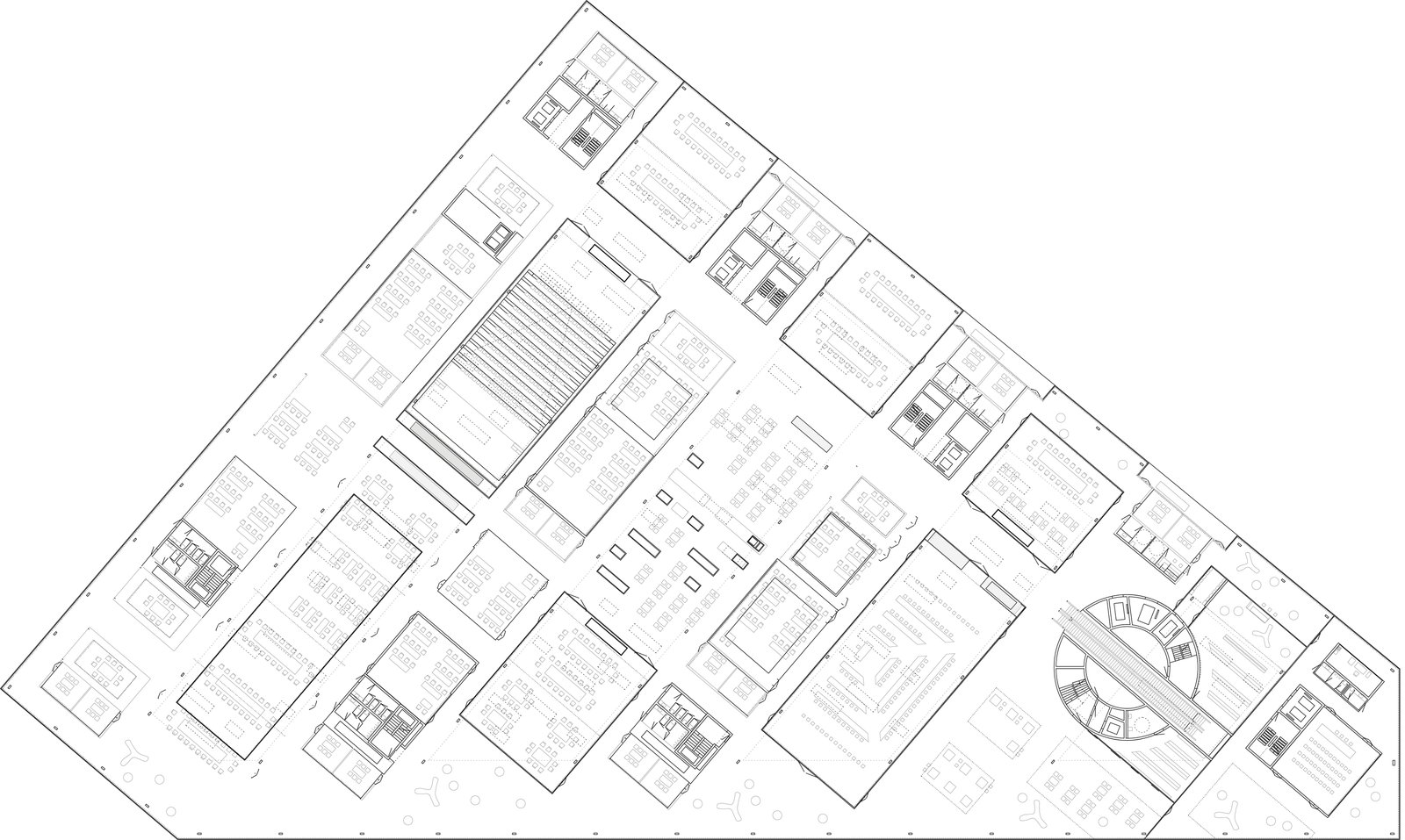
Durch einen radikalen Schnitt oberhalb des zu erhaltenden, sich im Sockel des Gebäudes befindlichen Einkaufszentrums, wird die ineffiziente Struktur des Bestands entfernt und durch einen funktional, strukturell und energetisch optimierten Baukörper ersetzt. Die rein funktionalen Verwaltungs- und Technikebenen sind im Sinne einer grösstmöglichen Effizienz gestaltet. Dies erlaubt punktuelle Grosszügigkeit, welche im Besonderen in der repräsentativen ‚Bel Etage’ in Erscheinung tritt. Die kommunikativen Nutzungen werden hier auf einer Ebene zusammen geführt. Die fliessenden Räume zwischen den Auditorien und den Sitzungszimmern erleichtern die Orientierung, schaffen spannende Raumfolgen und bieten attraktive Aufenthaltsbereiche für Gäste und Nutzer.
GF 32’400 m2
Bauherrschaft
Provincie Oost-Vlaanderen, BE-Gent
Zusammenarbeit
a practice, BE-Brüssel

