FORSCHUNGSGEBÄUDE GLC, Neubau
CH-Zürich
Wettbewerb
2011
Das Forschungsgebäude GLC soll zukünftig zum Zentrum für das neue Departement Health Science and Technology der ETH Zürich ausgebaut werden. Das Areal für den Neubau des Forschungsgebäudes GLC befindet sich am Rande des Hochschulquartiers und grenzt einerseits an die Bauten des Universitätsspitals, andererseits an das Villenquartier des Zürichbergs.
Mit dem einfachen, scheibenartigen Bauvolumen wird ein Einbinden in den übergeordneten stadträumlichen Kontext erreicht; das Gebäude rahmt, klärt, ergänzt und reagiert auf die unterschiedlichen Qualitäten des Ortes. Zum Villenquartier des Zürichbergs zeigt sich die neue Volumetrie aufgrund des stark abfallenden Geländes nur eingeschossig und bildet die städtbaulich sensible Übergangsstelle zwischen den grossmassstäblichen Hochschulgebäuden und den volumetrisch kleineren Wohngebäuden.
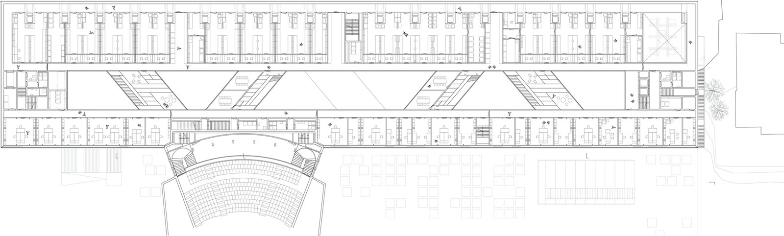
Dieses rückwärtige Gebäudevolumen ist als Atriumtypologie entworfen. Das Atrium übernimmt wichtige gesellschaftliche, kommunikative und klimatische Aufgaben und nutzt das einfallende Tageslicht zur Belichtung der unterschiedlichen Nutzungen.
Ein Sockelvolumen erstreckt sich südöstlich vom Riegel bis zur Gloriastrasse und bildet neu eine klare Adresse für das gesamte Gebäudekonglomerat aus. Die auf dem Sockelvolumen angeordnete Terrasse bietet neu eine grosszügige Aufenthalts- und Veranstaltungsfläche. Am Ende der Eingangshalle, gegenüberliegend dem Haupteingang, weist ein verglaster Vorraum mit spektakulärer Sicht ins Atrium zu den Liften und der Erschliessungstreppe des Forschungsgebäudes. Seitlich zur Mensa wird das Gebäude ETZ über eine grosszügige Erschliessungstreppe und eine parallel dazu laufende behindertengerechte Rampe erschlossen.
GF: 26'700m2
Bauherrschaft: ETHZ, CH-Zürich
