PAVILLON AUF DEM GURTEN, Neubau
CH-Bern
Wettbewerb 1.Preis
2012-2014
Die neue Festhalle soll das bestehende temporäre Festzelt ersetzen, welches auf dem Gurten, dem Berner Hausberg, durch das Restaurant Gurtenkulm betrieben wird.
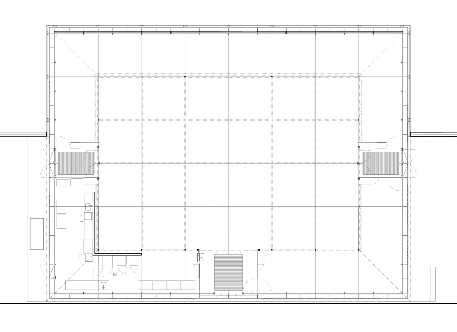
Der Neubau wird ein allseitig verglaster Pavillon, der sich über die befestigte Kante der terrassierten Umgebung legt. Das Herz des Gebäudes ist ein grosser, stützenfreier, allseitig orientierter Raum. Vielseitig nutzbar für Konferenzen, Schulungen, Versammlungen und Feste ist er funktional und feierlich zugleich. Um die neue Festhalle legt sich eine, etwa vier Meter tiefe und grundsätzlich transparente Raumschicht. In ihr sind die Eingänge (zu drei Seiten), Garderobe, der Apéro Bereich und notwendigen Nebenräume untergebracht. Die optische Trennung zwischen Saal und Raumschicht kann in unterschiedlichen Anordnungen mit einem Vorhangsystem situativ erreicht werden.
GF 700m2
Bauherrschaft
Stiftung Gurten - Park im Grünen, CH-Bern
