'LEUCHTTURM', Neubau
CH-Wädenswil
Studienauftrag 1. Preis
2008
Wädenswil möchte an prominenter Stelle, auf dem Seeplatz direkt zwischen See, Bahnhof und Schiffsanleger, stärker in Erscheinung treten. Auf kleinem Raum soll ein Gebäude von starker Ausstrahlung - ein ‚Leuchtturm’ - entstehen.
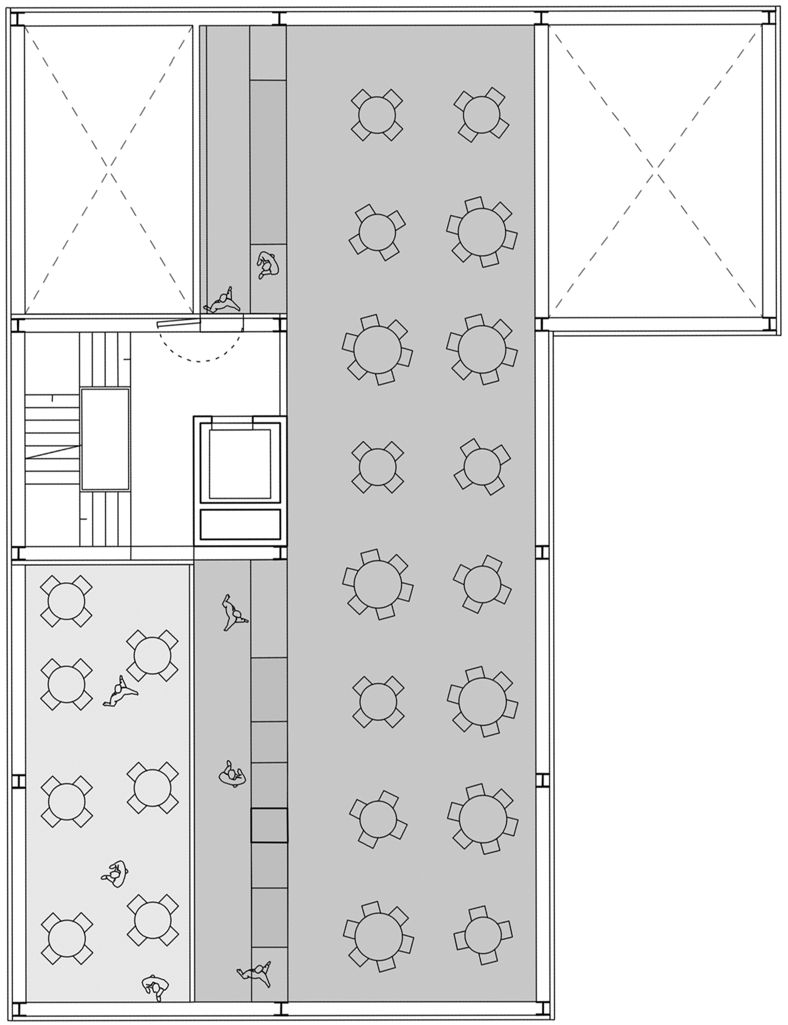
Der Entwurf bildet ein in der z-Achse verschobenes Koordinatensystem, das die bestehenden Weg- und Sichtlinen aufspannt und nachzeichnet. Die weit über dem See auskragenden Restaurant- und Barkörper sind unterschiedlich proportioniert und verschränken sich im Inneren ineinander, wodurch die verschiedenen Sichtachsen inszeniert werden. Das Restaurant mit der Längsseite parallel zum Ufer bietet ein vollständiges Panorama, während der lange, hohe Barraum mit seinen zwei grossen Hauptöffnungen sein Augenmerk auf die Verbindung von Stadt und See richtet.
Der Turm soll in Stahlbauweise ausgeführt werden, wobei die Fachwerkstruktur verhüllt, aber nicht versteckt wird. Die Einfachheit der Struktur soll spürbar bleiben, gleichzeitig aber von einer flächig wirkenden Oberfläche veredelt werden.
GF 430m2
Bauherrschaft
Stadt Wädenswil, CH-Wädenswil
