LABOR- UND BÜROGEBÄUDE ETH ZÜRICH, Neubau
CH-Zürich Hönggerberg
Wettbewerb
2016
Die ETH Zürich plant im Rahmen der strategischen Entwicklung auf dem Hönggerberg ein neues Physikgebäude HPQ mit Labor- und Büronutzungen zu erstellen.
Das Gebäude kommt an prominenter Lage entlang der im Masterplan von 2007 definierten Hauptachse zu liegen. Die Setzung des Gebäudes zur Strasse hin orientiert sich klar an der vorgefundenen Struktur von Gebäudevor- und –rücksprüngen. Zum Flora-Ruchat-Roncati-Garten hin wird die Fassadenflucht des benachbarten Gebäudes aufgegriffen, wordurch ein einheitlicher Grünraum entsteht.
Das Gebäudevolumen ist zu einem Drittel in einem oberirdischen und zu zwei Drittel in einem unterirdischen Volumen organisiert. Grund hierfür sind die sehr spezifizierten Anforderungen an die einzuplanenden Räume hinsichtlich Tageslicht und vor allem Erschütterung.
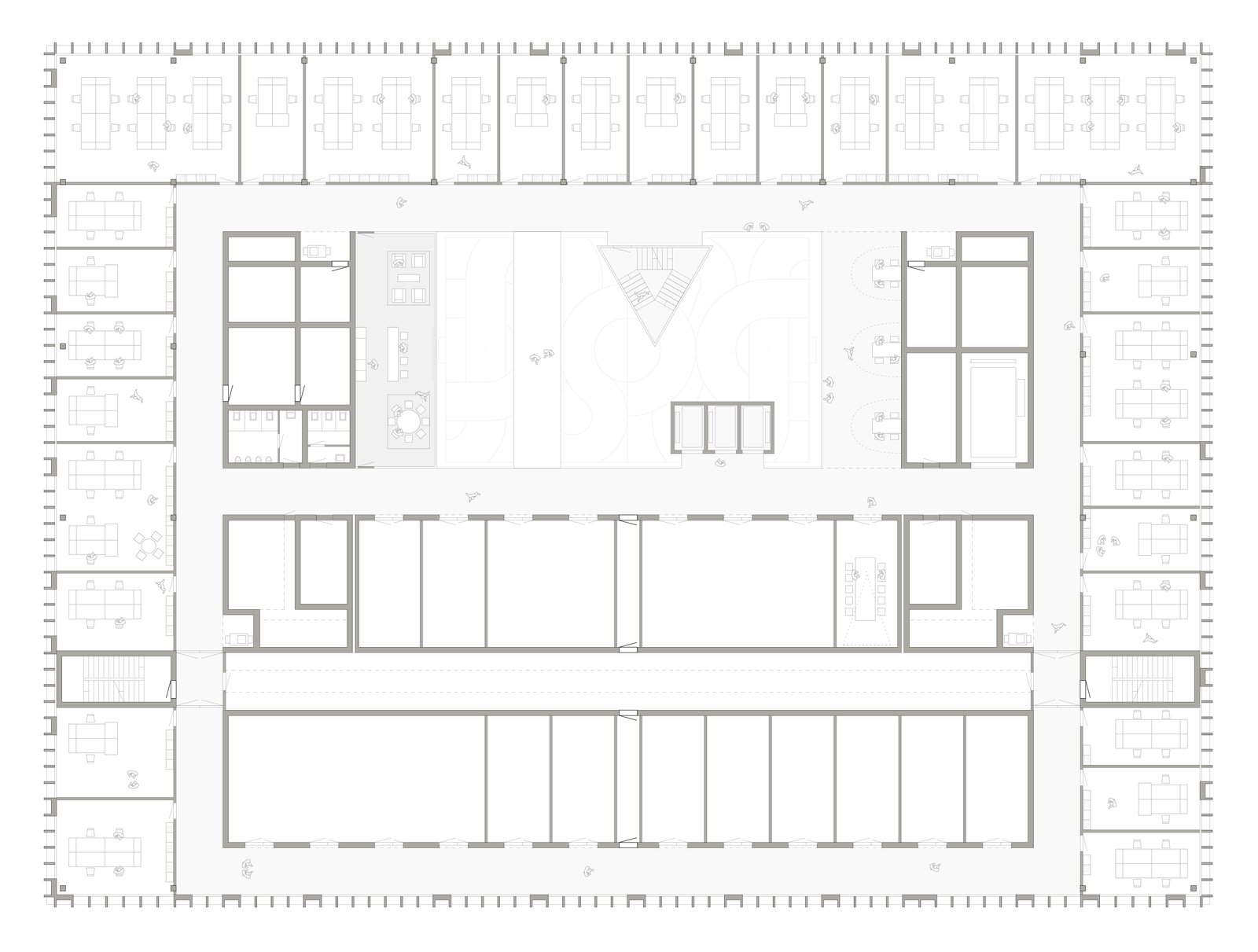
Das Gebäude ist über alle Geschosse als Hoftyplogie entworfen. Der Innenhof bildet das eigentliche Herz des Hauses, ist geschossverbindend, Orientierungspunkt im Gebäudeinnern und bildet die visuelle Kommunikation unterhalb der einzelnen Geschosse im Gebäudeinnern.
Die Grundrisse der Obergeschosse entwickeln sich aus der Gebäudetypologie als ringartige Struktur. In den oberirdischen Geschossen sind dreiseitig Büronutzungen, die über einen umlaufenden Korridor erschlossen werden, angeordnet.
An der südlichen Längsseite des Innenhofs schliesst in jedem Geschoss ein Laborblock an. Die Laborschicht findet sich ebenfalls in den Untergeschossen wieder. Anstelle des rundumlaufenden Bürorings, sind in den Untergeschossen die Technik-und Nebenräume angeordnet. Losgelöst von der aus den Obergeschossen kommenden Struktur, schliessen im Anschluss die Plattformen an das Gebäude an.
GF 33'000m2
Bauherrschaft
ETH Zürich
