SCHULUNGSHAUS DER R. NUSSBAUM AG, Neubau
CH-Trimbach,
Wettbewerb 1. Preis
2009-2011
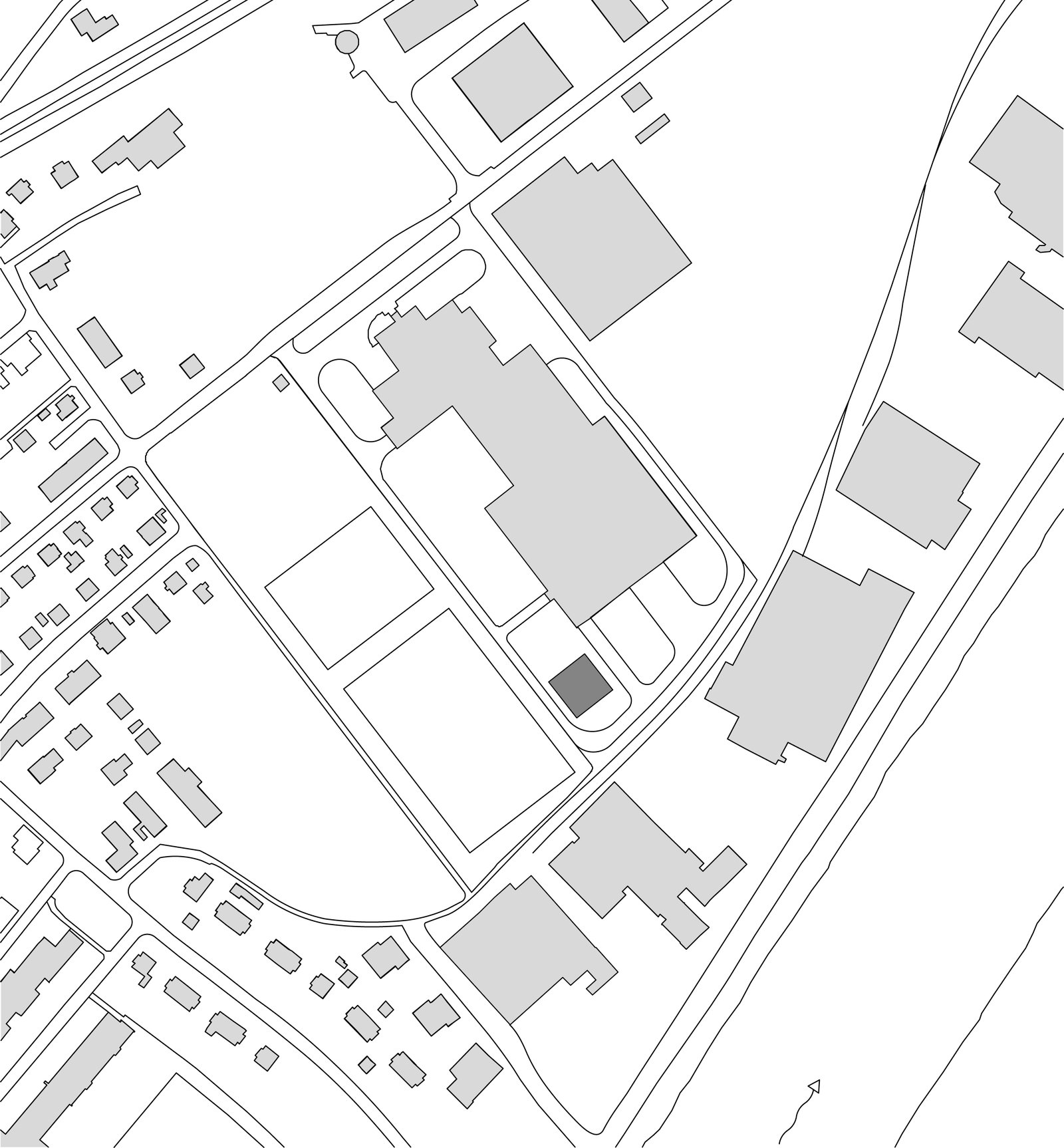
Das Informations- und Schulungszentrum bildet den Auftakt und das Aushängeschild des Industrieunternehmens am Standort Trimbach bei Olten.
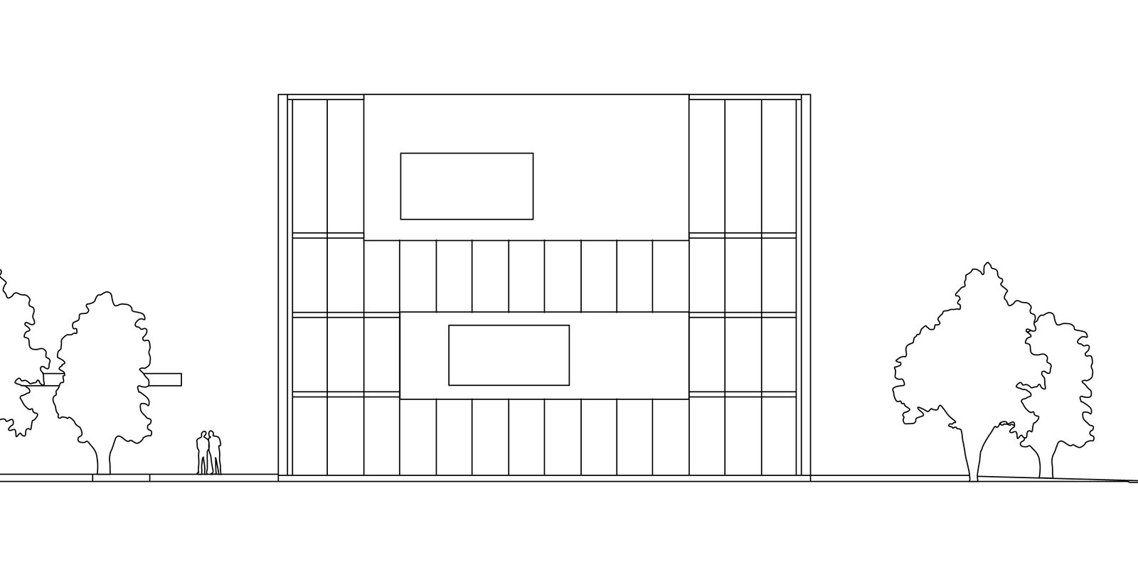
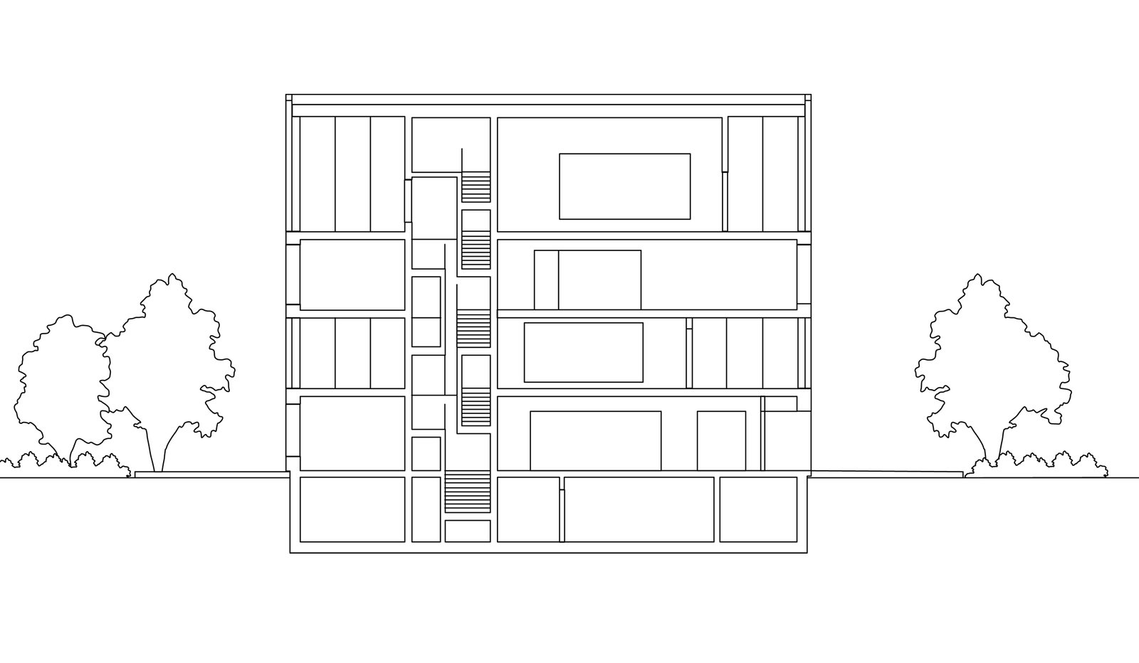
Innerhalb einer Glashülle stehen die verdreht gestapelten Schulungsräume und bilden so Terrassen zum Zwischenraum aus. Während die klare, kubische Setzung des Äusseren auf den industriellen Kontext verweist, bringt die innere Skulptur die Besonderheit der Nutzung zum Ausdruck. Neben der räumlichen Innovation macht sich das Gebäude auch fortschrittlichste Tragwerks- und Klimaplanung zu nutze.
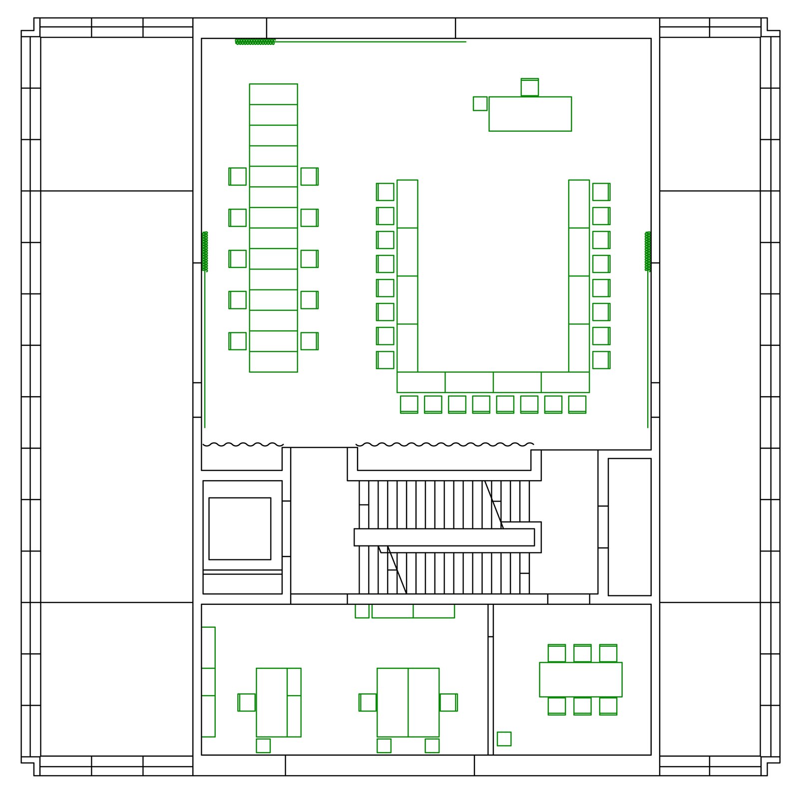
Es wird eine Erlebniswelt geschaffen, in welcher der Besucher und Kunde mit neuen Produkten in Berührung kommt und sich in einem offenen Umfeld mit anderen treffen und austauschen kann. Der Besuch im Schulungszentrum soll als nachhaltiger, positiver Eindruck in den Köpfen der Gäste verankert bleiben.
GF 2'000m2
Bauherrschaft
R. Nussbaum AG
