SPORTHALLE GLÄND, Neubau
CH-Gerlafingen
Wettbewerb
2024
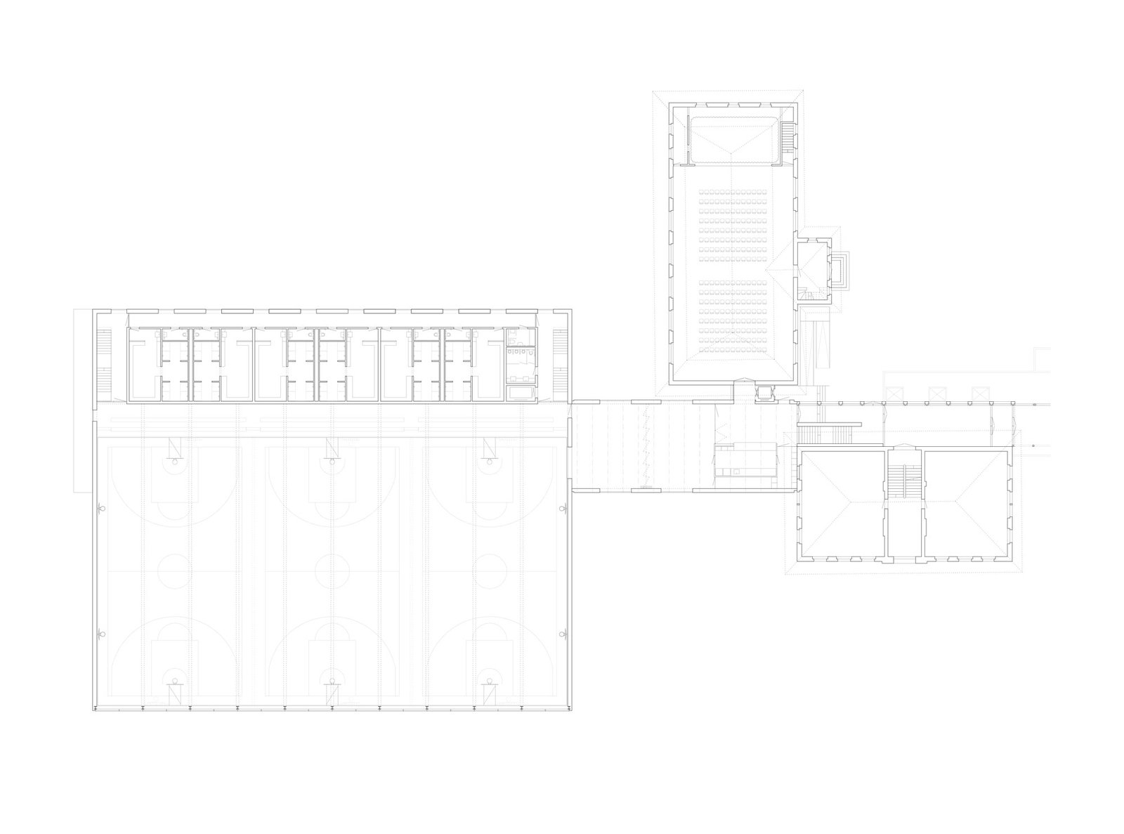
Die Gemeinde Gerlafingen möchte auf ihrem Areal Gländ 2 eine Dreifachsporthalle errichten. Die neue Sporthalle für die Primarschule soll ausserhalb der Schulzeiten für Sportvereine zur Verfügung stehen.
Das Volumen der neuen Dreifachsporthalle steht mit seiner langen Fassadenflucht längs zur Schulhausstrasse und sucht in seiner Ausrichtung den Bezug zum benachbarten Bestand. Gemeinsam mit der alten Gländhalle sowie dem Schulhaus Gländ 2 West wird sie künftig als Dreiergruppe ein Ensemble bilden, welches in seinem Zentrum über ein Brückenbauwerk zusammengehalten wird, indem es das 1.Obergeschoss der Sporthalle mit dem Erdgeschoss der alten Gländhalle sowie des Schulhauses verbindet.
