TURNHALLENTRAKT MARGELÄCKER, Neubau
CH-Wettingen
Wettbewerb
2014
Das ab 1965 erbaute Schulhaus-Ensemble Margeläcker soll um eine 3-fach-Sporthalle erweitert werden.
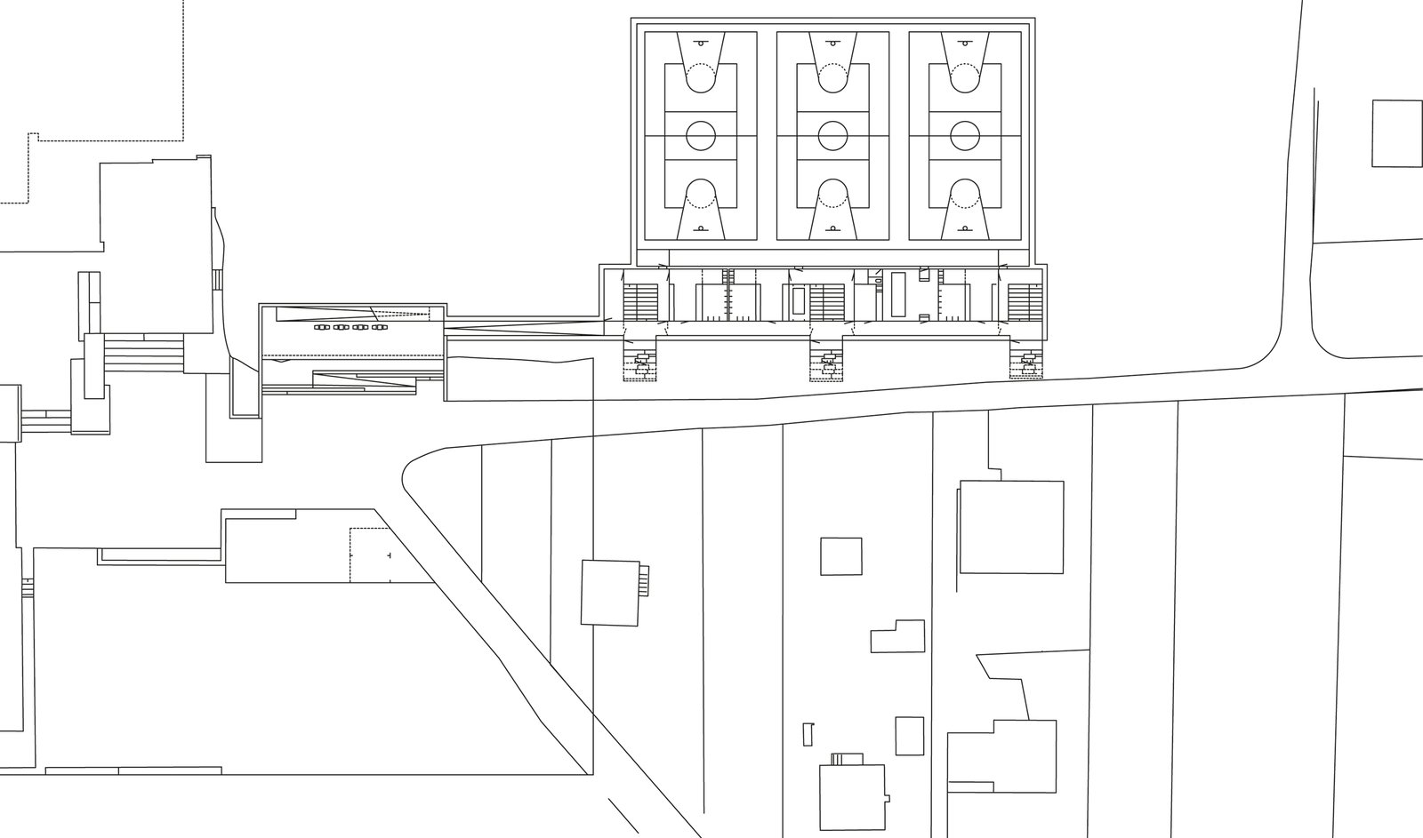
Die Schule liegt, umgeben von mehrheitlich kleinen Wohnbauten, im östlichen Gemeindegebiet von Wettingen. Sie gruppiert sich beziehungsreich um die beiden unterschiedlichen Freiflächen der Sportwiese und des Pausenhofs. Um die Qualität dieser Aussenräume zu erhalten, wird die Dreifachturnhalle unterirdisch vorgeschlagen. Dieser Ansatz ermöglicht überdies die Entsorgung der bestehende Abfalldeponie unterhalb des heutigen Spielfeldes.
Da die Orientierung und der Tageslichtbezug bei einer unterirdischen Turnhalle eine entscheidende Rolle zukommen, ist eine klare Erschliessung Ausgangspunkt des Entwurfs. Ein grosszügiges Foyer bildet die neue Adresse der Dreifachturnhalle und stärkt die durch zukünftige Erweiterungen noch wichtiger werdende Mitte der Schulanlage. Drei in die Böschung zur Sportwiese integrierten Geländeeinschnitte lassen die Innenräume der Halle mit Aussen in Verbindung treten.
Das Dachtragwerk der Halle besteht aus 12 Stahlträgern, die zusammen mit einer Holz-Beton-Verbunddecke eine statische Einheit bilden. Die Träger liegen auf der einen Seite auf der Aussenwand und auf der anderen Seite auf der Trennwand zu den Garderoben auf. Dadurch kann die darunterliegende Galerie stützenfrei ausgebildet werden und bietet einen optimalen Blick auf das Sportgeschehen.
GF 2’600m2
Bauherrschaft
Einwohnergemeinde Wettingen, CH-Wetingen
