MISCHELI-ZENTRUM, städtebauliche Neuordnung
CH-Reinach 
Studienauftrag
2007
Das Reinacher Mischeliquartier ist bislang geprägt von einer typischen Agglomerationsstruktur ohne klare räumliche Definitionen.
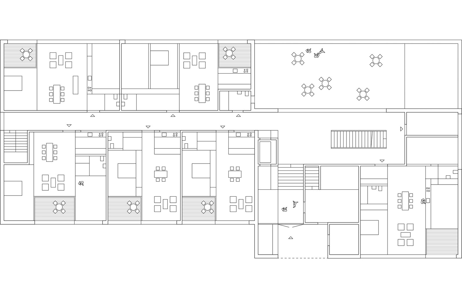
Das zentral gelegene Mischeli-Zentrum ist innerhalb seines Umfeldes ein Massstabsbruch und die von Ernst Gisel entworfene Kirche steht als Solitär in einem der vielen, desperaten Grünräume.
Mit der Neuordnung des Zentrums besteht die Möglichkeit die bestehende Situation programmatisch und städtebaulich zu klären. Der Entwurf sieht eine Konzentration vor und stellt das Kirchengemeindehaus und die Seniorenwohnungen der Kirche zur Seite. Mit der so erzeugten Kette entsteht ein ernstzunehmendes Gegengewicht zum Mischelizentrum, welches so seiner Unmassstäblichkeit benommen wird. Die neuen Volumen bilden zusammen mit der Kirche eine klare aussenräumliche Grenze zwischen dem Grünraum einerseits und einer städtischen, zwischen den Baumassen vermittelnden Platzfläche andererseits. Auf diese Platzfläche orientieren sich alle Gebäude. Das bestehende Pfarrhaus wird zu einem Platzelement und bekommt mit dem kirchlich betriebenen Kaffee und Jugendtreff ein öffentliches Platzpendant. Beide Elemente stehen damit räumlich und thematisch zwischen dem weltlichen Mischeli-Zentrum und dem geistlichen Kirchenzentrum.
GF 3000m2
Bauherrschaft
Evangelisch Reformierte Kirchengemeinde Reinach BL






