ALTER WERKHOF REINACH, Überbauung
CH-Reinach
Studienauftrag
2006
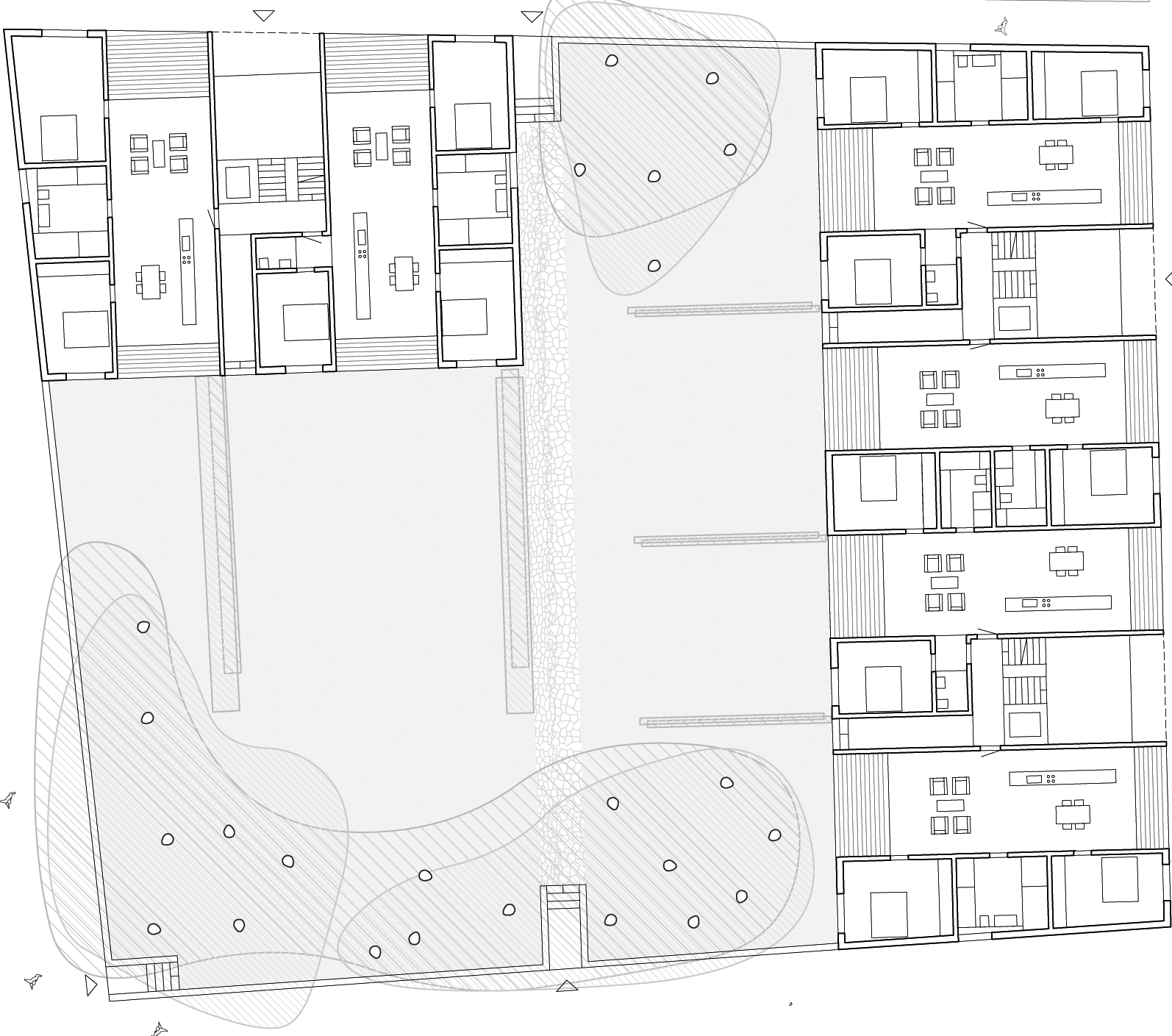
Die Parzelle des ehemaligen Werkhofes liegt nahe des noch heute erkennbaren und flächenmässig ähnlich grossen alten Dorfkerns von Reinach.
In einer Entwicklungsstudie sollen städtebauliche Strategien und Bebauungsvorschläge für eine Mischnutzung auf dem Areal erarbeitet werden, das zu den letzten zentrumsnahen Baulandreserven der Gemeinde zählt.
Der Bebauungsvorschlag möchte sich in die umgebende Ortsstruktur integrieren ohne auf Lebensraum hoher Qualität zu verzichten. Hierzu wird den einzelnen Volumen jeweils ein privater Aussenraum direkt zugeordnet, welcher als unterschiedlich gestalteter Garten von den Bewohnern genutzt werden kann. Eine strikte Trennung der privaten Grünräume vom öffentlichen Raum definiert diesen klar in Form von Gassen und Plätzen. Halböffentliche, nicht nutzbare Pufferflächen können so vermieden werden. Dieses städtebauliche Gerüst ermöglicht eine vielfältige Bebauung der einzelnen Grundstücke und möchte als abwechslungsreiche Struktur einen grossen Identifikationsgrad und eine zeitgemässe Interpretation von ‚Nachbarschaften’ geben.
GF 16’000 m2
Bauherrschaft
Gemeinde Reinach, CH-Reinach
