WOHNQUARTIER GASWERKAREAL, Neubau
CH-Biel
Wettbewerb 2.Preis
2002
Das freiwerdende Gaswerkareal liegt am Rand der Bieler Innenstadt. Von hier aus ist sowohl der Güterbahnhof als auch das Bieler Kongresshaus in fünf Minuten fussläufig erreichbar.
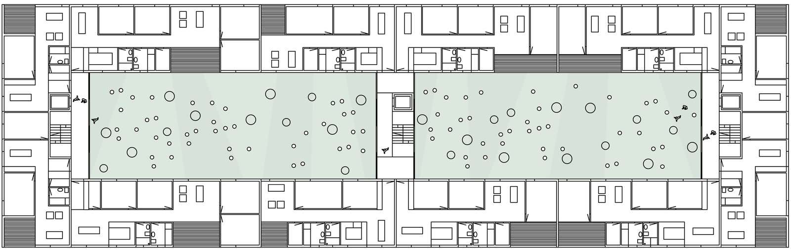
Der Entwurf sucht nach einer angemessenen Urbanität für den Ort. Die unterschiedlich proportionierten Blockränder bilden harte Strassen- und Platzräume, welche durch die grüne Innenwelt der Blöcke kontrastiert wird.
GF 27’500m2
Bauherrschaft
Espace Real Estate AG, CH-Biel
Zusammenarbeit
0815 Architekten Biel
