HAUS WIDMER / REMUND, Neubau
CH-Bolligen
Wettbewerb 1.Preis
2006-2009
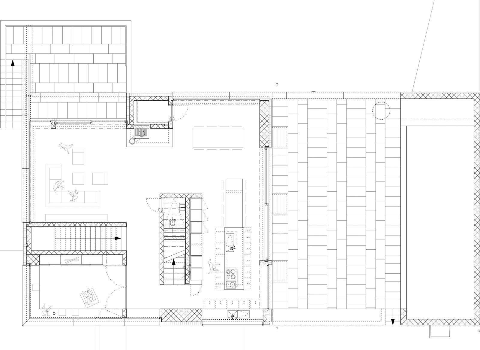
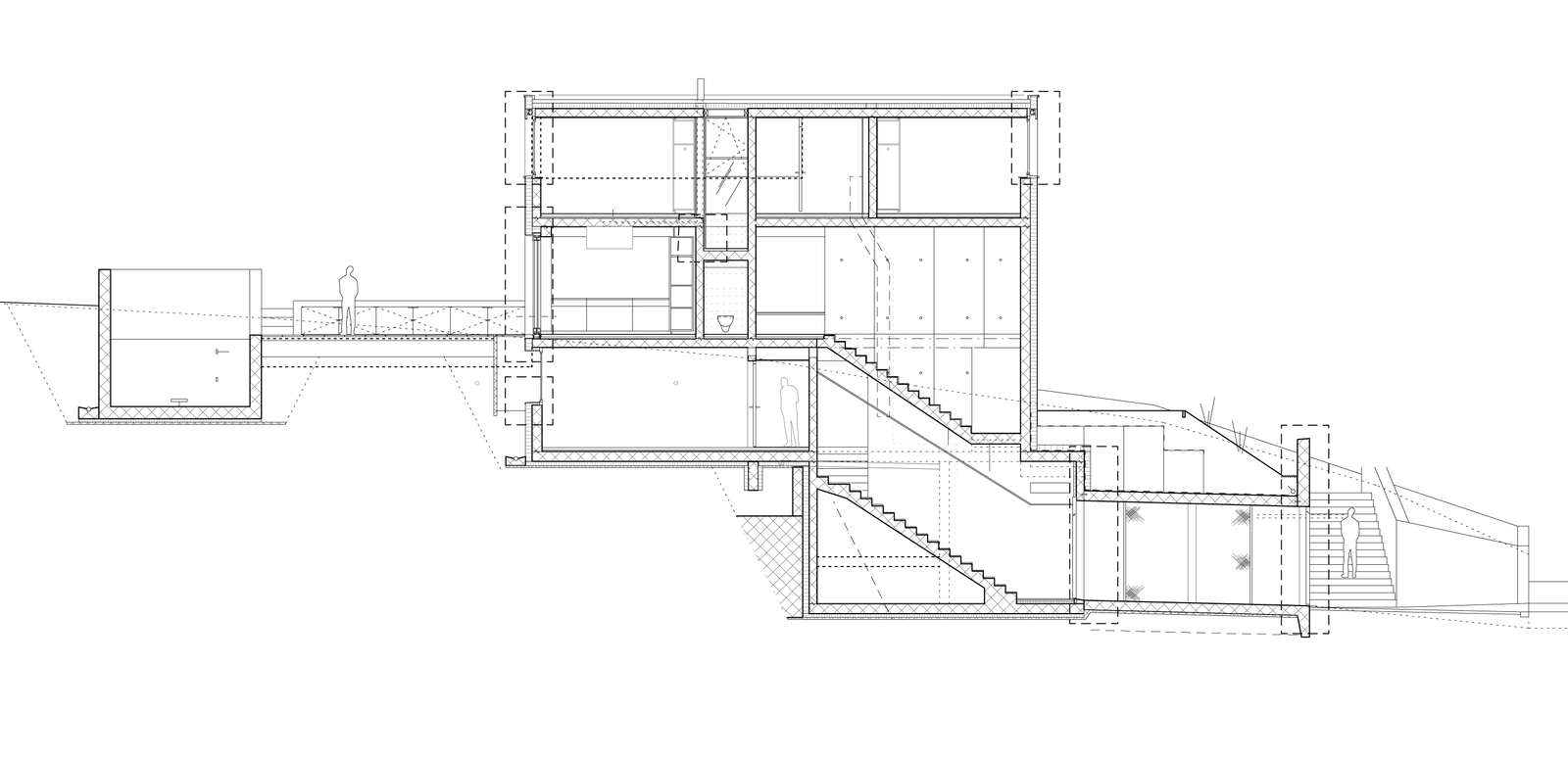
Skulpturales Wohnwerkzeug im Hang. 3 Körper im Erdgeschoss verbinden die vier Geschosse und bilden ebenso viele Lebensbereiche. Essen, Kochen, Wohnen und Lounge.
Unterschiedliche Raumhöhen und Aussenbezüge bilden differenzierte Wohnqualitäten. Gefasstes Lesen und überhohes Wohnen mit weiter Aussicht. Ein offenes Essen und Kochen, weitergeführt in der Terrasse und abgeschlossen durch den Pool. Ein Haus fuer die Familie. Spielraum und Fläche für die Kinder. Lebensraum und Erholung für die Eltern.
GF 300m2
Bauherrschaft Familie Widmer /Remund, CH-Bolligen
