WOHNHOCHHAUS LYSS, Neubau
CH-Lyss
Studienauftrag 1.Preis
2023-
An zentraler Lage in Lyss soll ein Mehrfamilienwohnhaus entstehen.
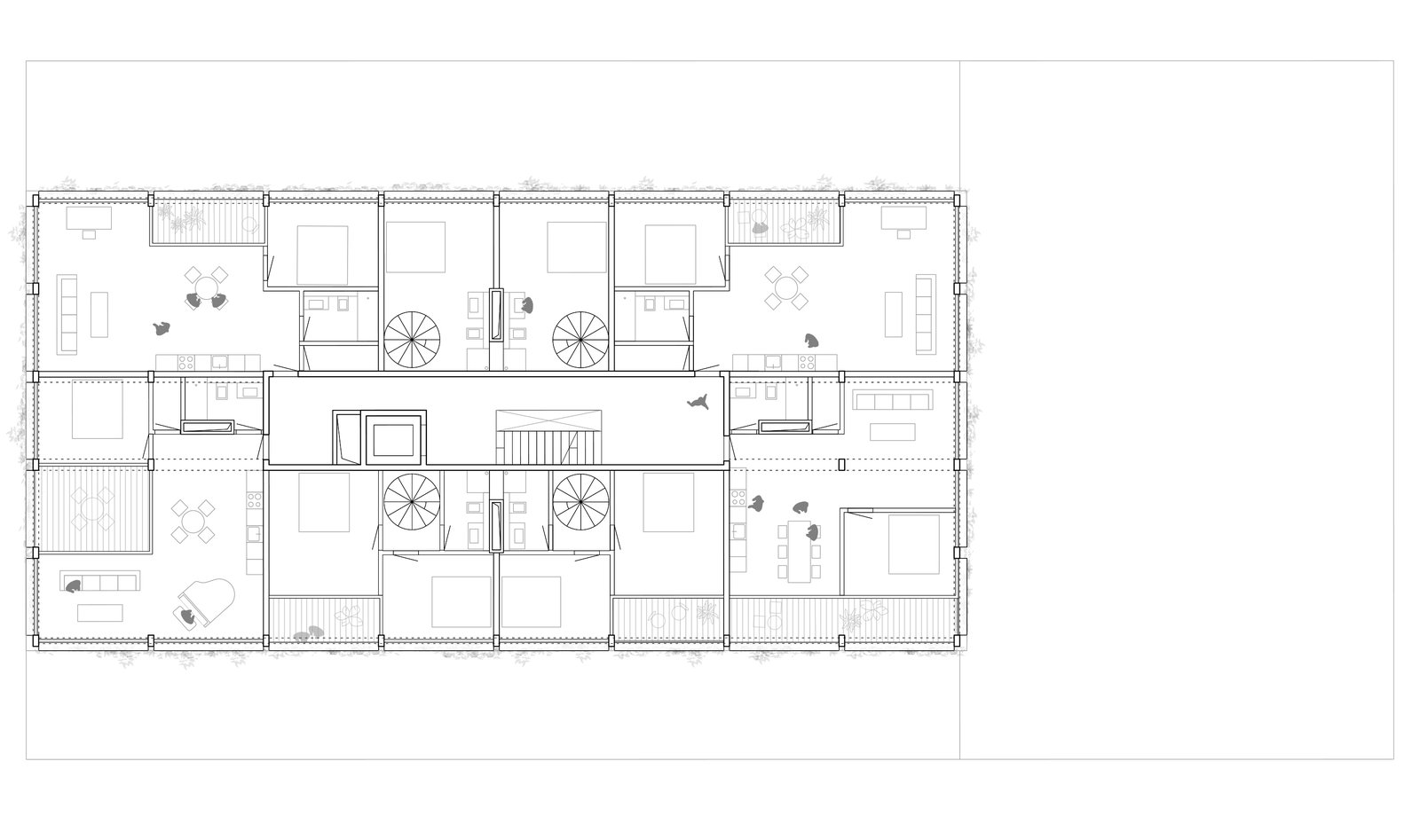
Das neungeschossige Hochhaus im Zentrum von Lyss setzt einen städtebaulichen Akzent und fügt sich harmonisch in den Kontext ein, während das Sockelvolumen eine klare Kante zum Strassenraum bildet. Die 43 unterschiedlich grossen Wohnungen in Holzhybridbauweise werden von einer fassadengebundenen Begrünung umhüllt, die durch ihre Beschattung und das dadurch entstehende Mikroklima eine hohe Qualität bietet.
GF 4'300m2
Bauherrschaft
TerraStar AG, CH-Basel
