ERLENMATT OST BAUFELDER 10+11, Neubau
CH-Basel
Studienauftrag
2015
Der Richtplan für die gesamte Erlenmatt Ost definiert die beiden Baukörper der Bausteine 10 und 11 im Baufeld I als «Quartierbildende Parkzeile». Die Westfassade öffnet sich auf den neuen, grosszügigen Erlenpark hin während die Hoffassade zum Gegenüber des für Veranstaltungen benutzten ‚BLG Silo’ wird.
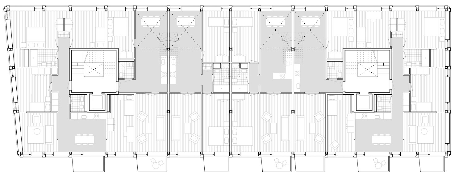
Um diese Anforderung zu erfüllen wird die Grundidee dem bestehenden Silobau entlehnt: Ein einfacher Bau, mit effizienter Tragstruktur und minimaler Fassadenabwicklung wird Vorbild und Referenz. Der Logik der Einfachheit folgend wird jedes Gebäude mit lediglich zwei Treppen- und Liftkernen ausgestattet, um die Geschosse zu erschliessen. Damit jedoch die grosse Anzahl von kleineren Wohnungen zugänglich gemacht werden kann und zusätzlich alle Wohnungen nach Westen hin orientiert werden können, sind die grösseren Wohnungen zwischen den Treppenkernen als Duplex organisiert.
Alle Duplexwohnungen weisen einen Raum mit Doppelhöhe aus und erhalten damit neben der eine zusätzliche Wohnqualität von zwei getrennten Wohnbereichen auch noch eine räumliche Aufwertung des Küchen- und Essraumes.
Die inneren Verbindungsgänge zwischen den Erschliessungskernen kommen nur auf zwei Geschossen vor und werden mittels Oblichtern natürlich belichtet.
GF 3’200 m2
Bauherrschaft
Stiftung Abendrot, CH-Basel
