EINFAMILIENWOHNHAUS, Neubau
CH-Ipsach
2011-2014
Das Grundstück liegt in der Nähe des Bielerseeufers, in einer für diese Region typischen Schneise zwischen hohen Bäumen.
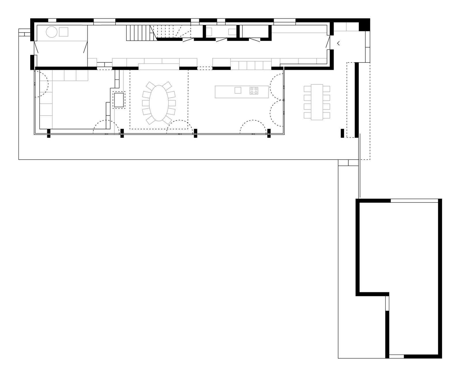
Das winkelförmige Erdgeschoss bildet einen massiven, ungeschliffenen Sockel, welcher die Tagesbereiche und Anbauten aufnimmt. Die Nebenzonen sind der Zufahrt zugewandt und erzeugen auf dieser Gebäudeseite ein geschlossenes Volumen. Lediglich im Knick, am Hochpunkt des leicht geschwungenen Geländes, bildet sich ein Durchbruch mit Zugang zum Inneren. Im Gegensatz zur Front öffnet sich die Gartenseite grosszügig nach Süden und Westen. Hier geht der offene Wohnraum fliessend in den gedeckten Aussenraum über. Dieser bildet, begünstigt durch das abfallende Gelände, eine klare Kante zum Garten. Über dem Erdgeschoss ruht ein klares Volumen, welches die Individualräume beherbergt. Beide Bereiche sind über einen, das Treppenhaus und die Galerie umspannenden Luftraum miteinander verwoben.
GF 280 m2
Bauherrschaft
n.n.
