FRÖHLISBERG, Wohnüberbauung
CH-Biel
Projektwettbewerb 2. Preis
2008
Der fragmentarische Zustand des Wohnquartiers Fröhlisberg ist der gegenwärtigen Situation deutlich anzumerken.
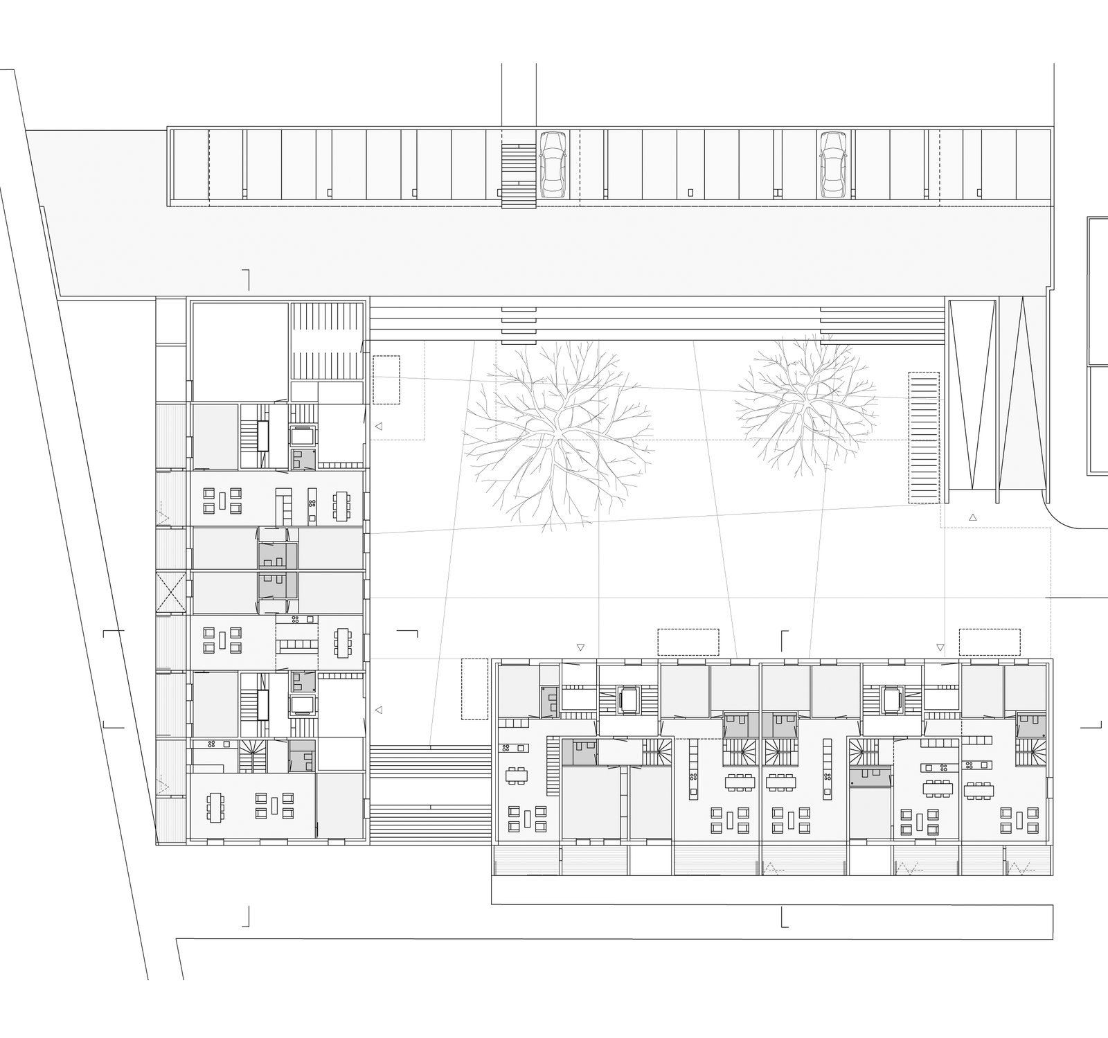
Um dem Wohnquartier eine neue Identität zu geben ergänzt der Entwurf die bestehenden Gebäude zu einem nach aussen und nach innen wahrnehmbaren Ensemble. Zwei rechtwinklig zueinander gesetzte Baukörper, die in ihrer Höhenentwicklung auf die bestehenden Gebäude Rücksicht nehmen, fassen einen grosszügigen Quartierplatz. Entsprechend seiner Funktion als Treffpunkt werden alle Zugänge der neuen Bebauung über den verkehrsfreien Platz erschlossen.
Die Zweiseitigkeit der Hofsituation verleiht allen Wohnungen besondere Qualität. Die zweifache Orientierung der Grundrisse sowie die minergetischen Vorgaben zeichnen sich auch in den Fassaden ab.
GF 3600 m2
Bauherrschaft
Pensionskasse der Stadt Biel, CH-Biel
