HAUS STIRNEMANN, Neubau
CH-Endingen
2014-2018
An einem aussichtsreichen Westhang im aargauischen Endingen ist ein Wohnhaus für drei Parteien entstanden.
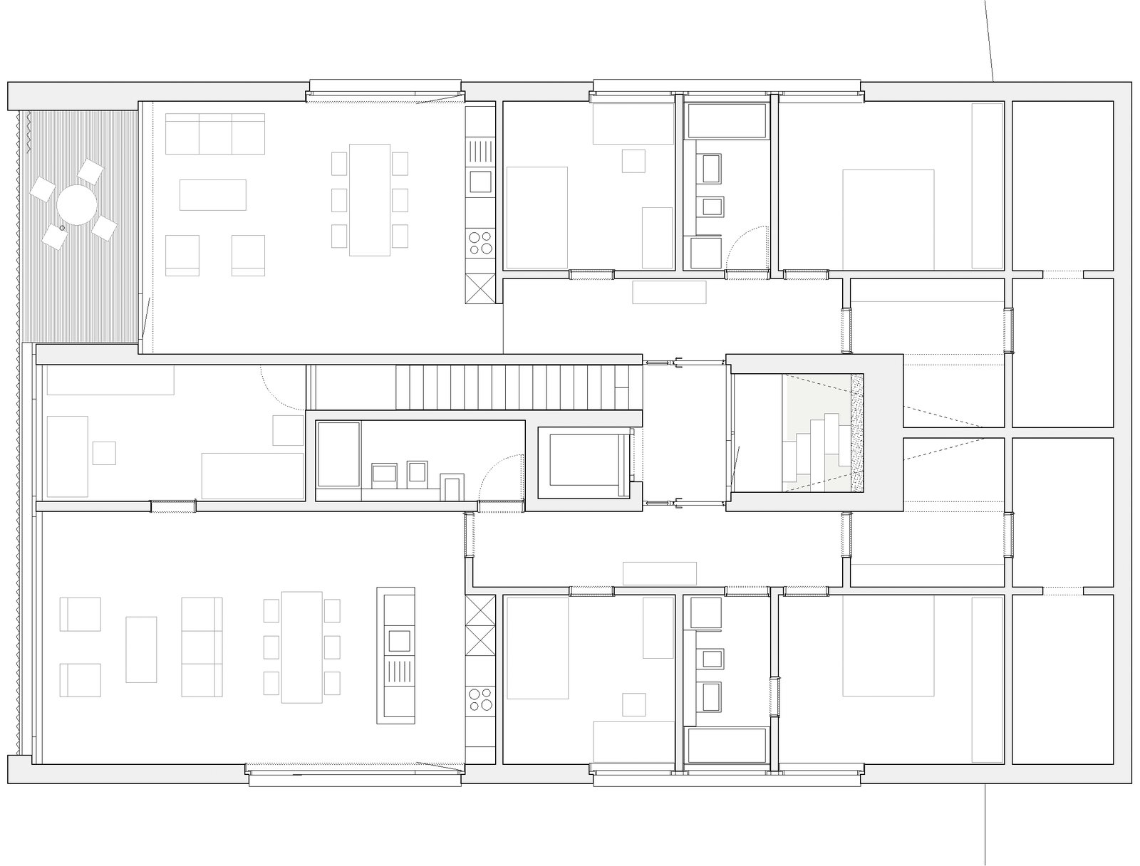
Um das Gebäude bestmöglich in die Topografie einzupassen, wurde der Baukörper längs zum Hang platziert. Die nördlichen und südlichen Parzellenränder zeigen die ursprüngliche Hangtopografie und wurden möglichst naturnah belassen. Auf Nebengebäude wird gänzlich verzichtet. Die vielen erforderlichen Autostellplätze sind unter und vor dem Gebäude organisiert. Über einem betonierten Sockelgeschoss erhebt sich ein zweigeschossiges, skulpturales Hauptvolumen, das seine innere Gliederung über eine massive, mittige Kernzone erfährt. Im unteren der beiden Wohngeschosse bildet diese Kernzone die Trennwand zwischen einer 3.5-Zi. und einer 4.5-Zi.-Wohnung und nimmt dabei die hochinstallierten Bereiche wie Eingang / Lift / Technik sowie die Sanitärräume auf. Im obersten Geschoss legt sich eine dritte Wohnung (4.5-Zi.) um die Kernzone. Einschnitte und Deckensprünge modulieren diese Etage zu einem vielfältigen ‚Wohnwerkzeug’. Drei unterschiedliche Aussenräume bieten hier vielfältige Möglichkeiten die Grenze zwischen Innen und Aussen aufzuheben.
GF 585 m2
Bauherrschaft
Esther und Peter Stirnemann, CH-Endingen
