HAUS LEHMANN, Neubau
CH-Alterswil
2000-2001
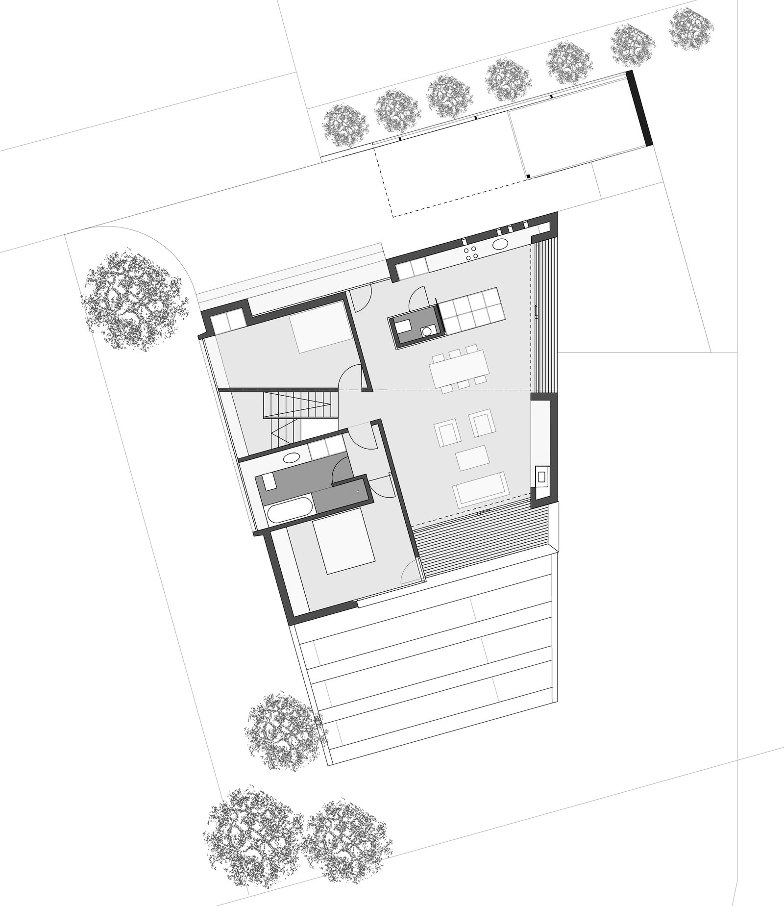
Das Einfamilienhaus verlagert die Funktionsschichten der Innenräume an die Aussenwände und erhält dadurch ein äusserst skulpturales, massives Aussehen. Diese Eigenschaft macht es zu einem wohltuenden Ruhepol im umgebenden, dörflichen Einfamilienhaus-Wohngebiet.
GF 160m2
Bauherrschaft
Fam. Lehmann, CH-Alterswil
