HUIS FAMILIE WILLEMSEN, Erweiterung
NL-Rozendaal
2006
Ein Einfamilienhaus im niederländischen Rozendaal soll mit zusätzlichen Wohn- und Schlafräumen erweitert werden.
Die Ausgangslage ist typisch für die monofunktionalen Vorstädte der Niederlande: Während entlang der Strassenzüge streng reglementierte Mehrfamilienhäuser Identität stiften und soziale Unterschiede unkenntlich machen sollen, wird auf der privaten Gartenseite der Traum vom individuellen Lebensstil gelebt.
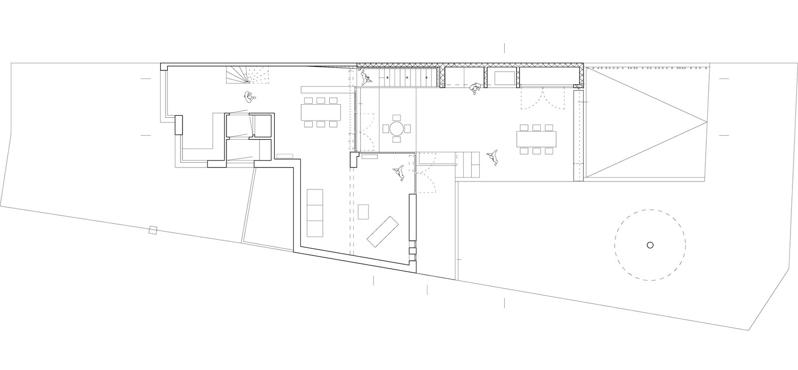
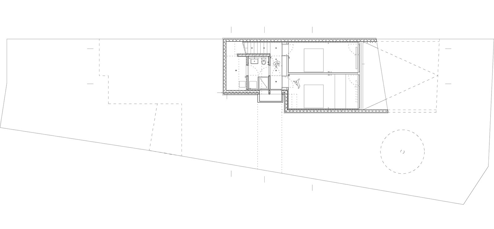
Der geplante Erweiterungsbau tritt nicht als konventionelles Haus in Erscheinung, sondern vielmehr als ein vielfach nutzbares Möbel, welches auf formale Gebärden im nachbarschaftlichen Wettstreit verzichtet. Stattdessen lösen eine Wand und eine angehobene Platte die elementaren Anforderungen einer Erweiterung. Die freistehende Wand erlaubt einerseits die Separierung von der Nachbarschaft, andererseits vereint sie so unterschiedliche Funktionen wie die einer Treppe, eines Grills, eines Schranks und eines Sofas. In derselben Weise erfüllt auch die angehobene Platte mehrere Funktionen. Als Terrasse ist sie eine direkte Verlängerung des Wohnzimmers nach aussen. Zusätzlich ist sie die Decke des Raumes, welcher etwas mehr als halbgeschossig versetzt im Terrain eingelassen und über die Treppe in der Wand erschlossen ist.
GF 55 m2
Bauherrschaft
Familie Willemsen, NL-Rozendaal
Zusammenarbeit
Raumbureau, CH-Zürich
