BAHNHOF SBB SÜD-OST, Neubau
CH-Basel
Wettbewerb
2008
Die dichte Blockrandstruktur des Quartier Gundeldingen in Basel wird durch den vorgesehenen Entwurf weitergeführt indem das Volumen den Blockrand abschliesst.
Der Entwurf operiert jedoch nicht mit der Kleinteiligkeit der Umgebung des vergangenen Jahrhunderts, sondern setzt den grossmassstäblichen neueren Elementen einen kraftvollen Baukörper mit einem einheitlichen Erscheinungsbild und Fernwirkung entgegen. Der doppelgeschossige obere Teil verleiht dem Gebäude ein besonderes Gewicht, ohne mit der Höhe seines Hauptkörpers seine kleinteilige Bebauung in der Nachbarschaft zu stark zu bedrängen.
Die Fassade bekommt durch ihre Massivität einen sehr städtischen Charakter, der der etwas rauen Situation am Bahnhof angemessen ist.
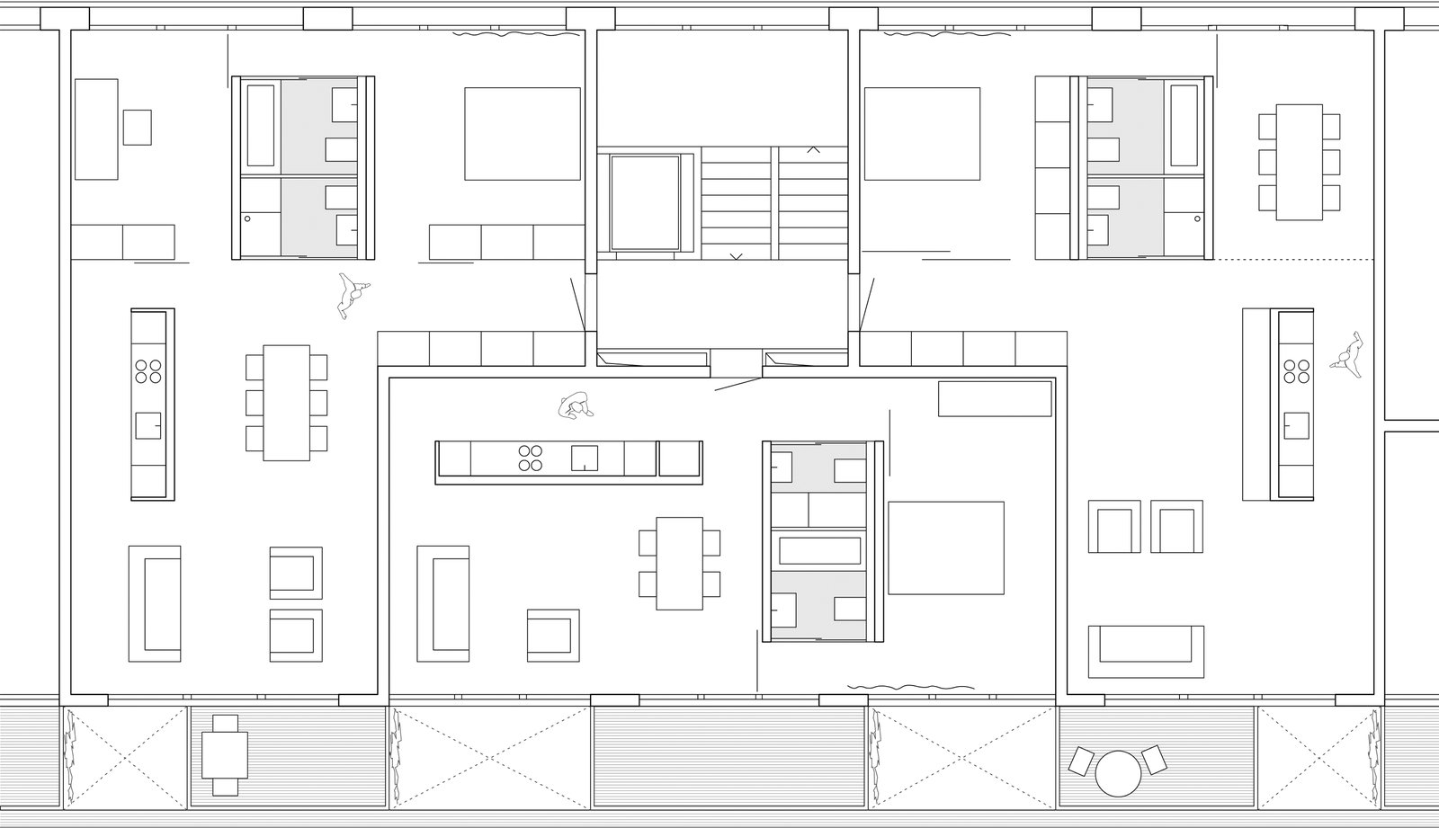
Die Wohnungen sind grosszügig ausgebildet und erhalten durch frei bespielbare Elemente besondere Qualität.
GF 5'000m2
Bauherrschaft
Immobilien-Anlagestiftung Turidomus
