STUDIENAUFTRAG SCHMIEDEGASSE, Neubau
CH-Solothurn
Wettbewerb 1.Preis
2018
Die Eigentümer mehrerer Grundstücke beabsichtigen, auf dem Weg eines städtebaulichen Wettbewerbsverfahrens, gemeinsam ein Neubauprojekt zu erarbeiten.
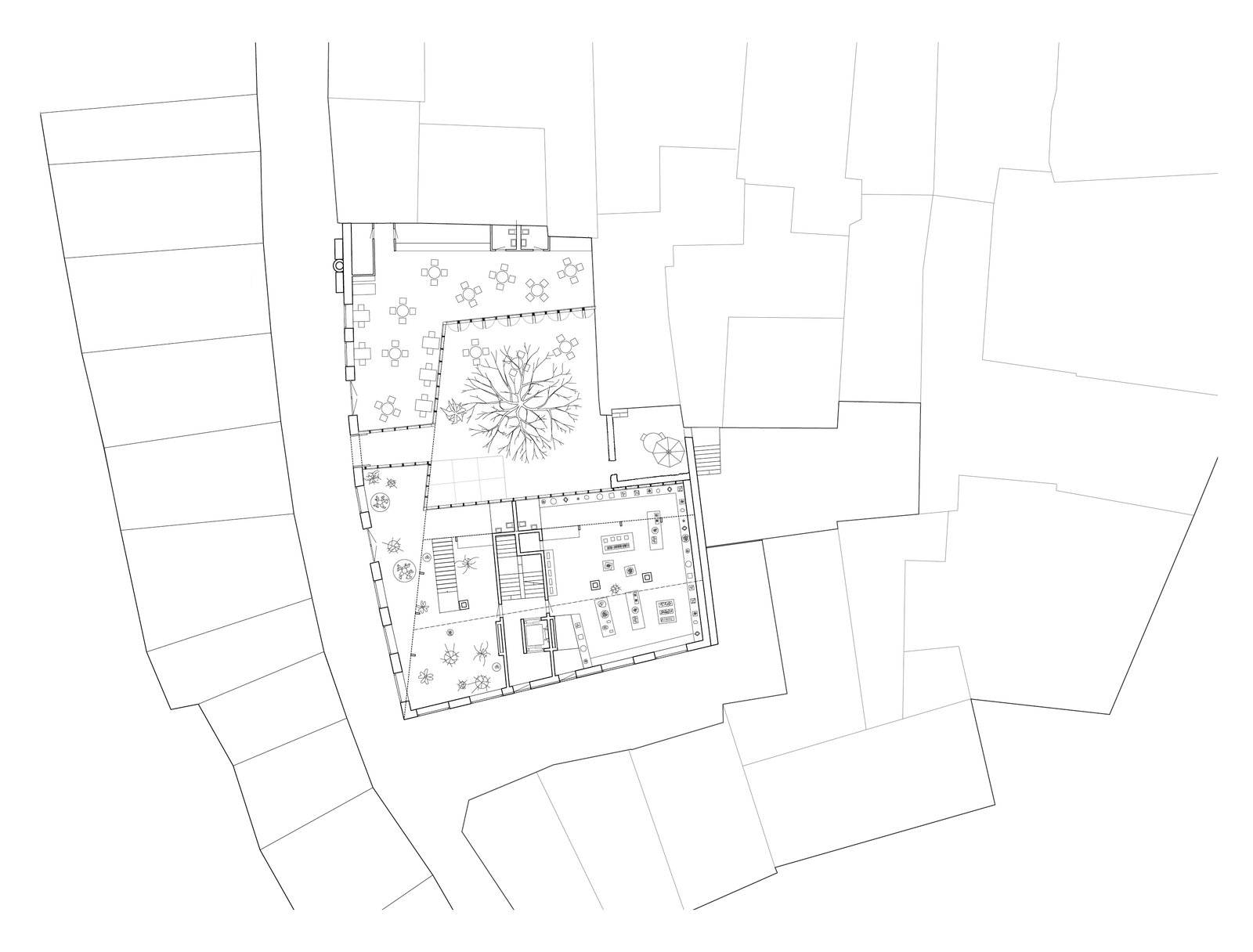
Der Perimeter, vorwiegend bestehend aus Hofparzellen an der Rückseite der Gurzelengasse, wirkt an seiner südlichen Grenze beim ehemaligen Baufeld gassenbildend. Dadurch scheint das neue Gebäude, aus städtebaulicher Sicht, vorgegeben. Es ist jedoch eine effiziente Ausbildung der Baumasse vonnöten um das Volumen rücksichtsvoll in die bestehende Umgebung zu integrieren. Damit dieses reduzierte Volumen erreicht werden kann, wird einen Teil der Nutzungen an die Rückseite der Gebäude der Gurzelengasse und entlang der Schmiedengasse vorgesehen. Dadurch wird die Schmiedengasse, in Fortführung der städtebaulichen Logik der Solothurner Altstadt, ostseitig durch ein Gebäude, anstatt einer Mauer, begrenzt. Das bekannte, heute bestehende Bild der Schmiedengasse, bleibt unverändert.
Durch seine Orientierung bespielt der rückseitige Baukörper den Innenhof und wertet diesen auf. Zusammen mit dem Hauptgebäude werden somit attraktive Verkaufs- oder Gewerbeflächen um den Innenhof angeordnet.
Ein wesentliches Merkmal bildet die Strinfassade des Hauptgebäudes zur Schiemdangasse. Diese wird nach Norden hin abgedreht und bildet zusammen mit dem Sockelgeschoss eine neue Flucht. Damit wird erreicht, dass die Schmiedengasse sich öffnet und nur der süd-westliche Hausspitz die Gasse definiert.
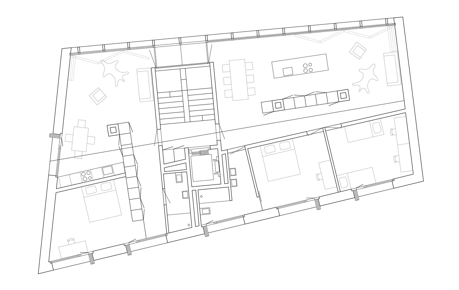
GF 1’416m2
Bauherrschaft
Familien Bregger / Reber
