VILLA IN MÖRIGEN, Neubau
CH-Mörigen
2009-2011
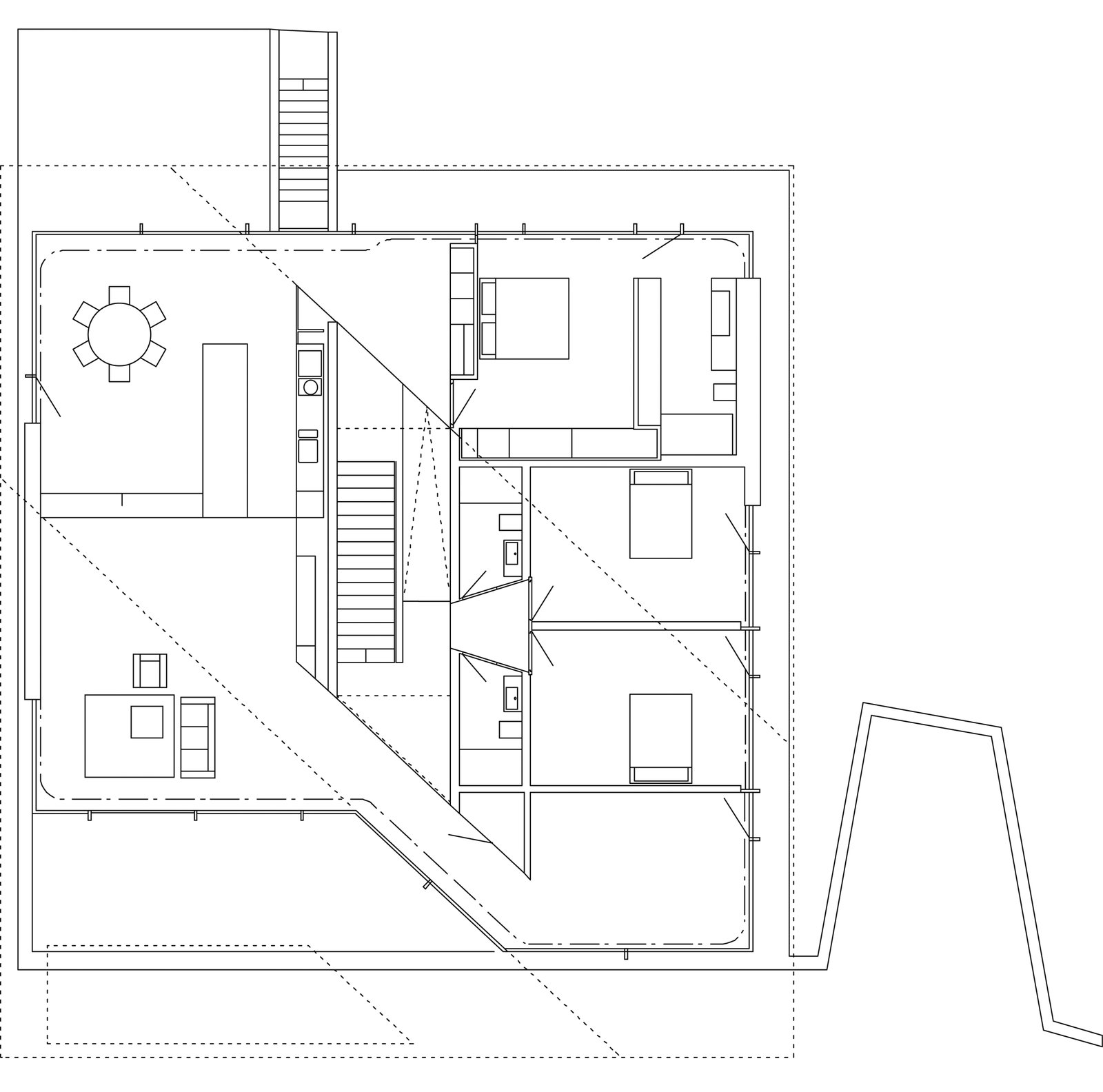
Das Grundstück liegt an einem Nordwesthang oberhalb des Bieler Sees. Der Entwurf entwickelt sich folglich aus der Problematik der hangseitigen Besonnung und der talseitigen Aussicht.
Ein zentraler Erschliessungsraum teilt das Volumen in Längsrichtung, über ihn wird das Wohngeschoss erreicht. Durch diesen Raum verbinden Brücken die privaten mit den öffentlichen Wohnbereichen auf den zwei Seiten der Erschliessung. Pool und Wellnessbereich sind unterhalb des Erdgeschosses und bilden so einerseits die Vorfahrt der Villa, andererseits haben sie Anschluss an das grosse Grundstück und die umgebenden Aussenbereiche.
GF 600m2
Bauherrschaft
n.n.
