NEUBAU FÜR INDIVIDUELLES WOHNEN, Neubau
CH-Biel
Wettbewerb
2019
In nächster Nähe zum Bahnhof Biel, der Magglingenbahn sowie Stadtzentrum und See situiert, sollte auf einer 62.5m langen, an der Hangkante des Jurasüdfusses gelegenen Parzelle, kleine Wohneinheiten für Singles und Paare allen Alters geschaffen und damit der vormals auf dem Grundstück befindliche Holzschopf ersetzt werden.
Der Neubau, gegliedert in zwei Volumen, folgt dem Jurahang, berührt diesen aber nicht. Letzterer wird bewusst inszeniert und dadurch Teil der Wohnungen. Die Gebäudestruktur reagiert mit grosszügigen Ecköffnungen auf die unterschiedlichen Tageslichtsituationen, inszeniert den Weitblick - wo möglich – und erlaubt gleichzeitig ein hohes Mass an Privatheit der einzelnen Einheiten.
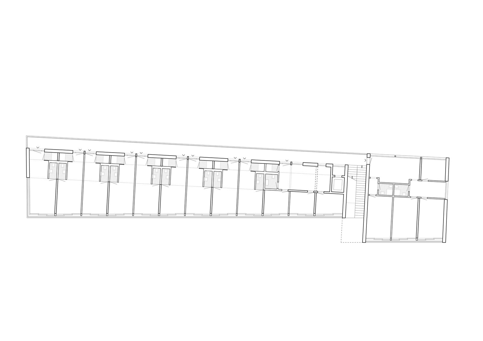
Ein kompakt und effizient organisierter, gebäudedurchlaufender Erschliessungskern - bestehend aus Lift und dazu gehörigen Treppenhaus - erschliesst die einzelnen Geschosse. Diese sind dem Treppenhaus als versetzte Laubengangtypologie angehängt und dienen gleichzeitig als Aufenthalts- und Begegnungsraum.
Alle Wohnungen verfügen über einen mittig gelegenen Sanitärkern mit WC, Dusche oder Bad. Dadurch ergibt sich für jede Wohnung, eine natürliche Zonierung in Teilbereiche – ohne auf die Vorzüge einer zweiseitigen Belichtung verzichten zu müssen. Die konstruktive Durchgängigkeit der Struktur bewirkt einerseits ein äusserst effizientes Tragsystem und andererseits einen hohen Wiederholungsgrad, der die Vorfertigung vieler Gebäudeteile begünstigt. Bedingt durch das Baugesetz und die Attikaregel, sind die Wohnungen an der Gebäudekurzseite von der Fassade schräg zurückgesetzt.
Das Fassadenkonzept zeichnet sich durch eine hochwertige, auf Beton, und Holz reduzierte Materialisierung und robuste Konstruktion aus. Die aussenliegende textile Beschattung stellt den sommerlichen Wärmeschutz und entsprechenden Komfort sicher.
GF 1880m2
Bauherrschaft
Familie Büeler
