UFERWEG BURGDORF, Überbauung
CH-Burgdorf
Wettbewerb
2009
Das Grundstück zwischen zeichnet sich durch seine Lage direkt am Fluss, seine Südausrichtung und den direkt angrenzenden Grünraum des Gyriparks aus. Der steile Hang der Felsegg im Norden bildet den Rücken.
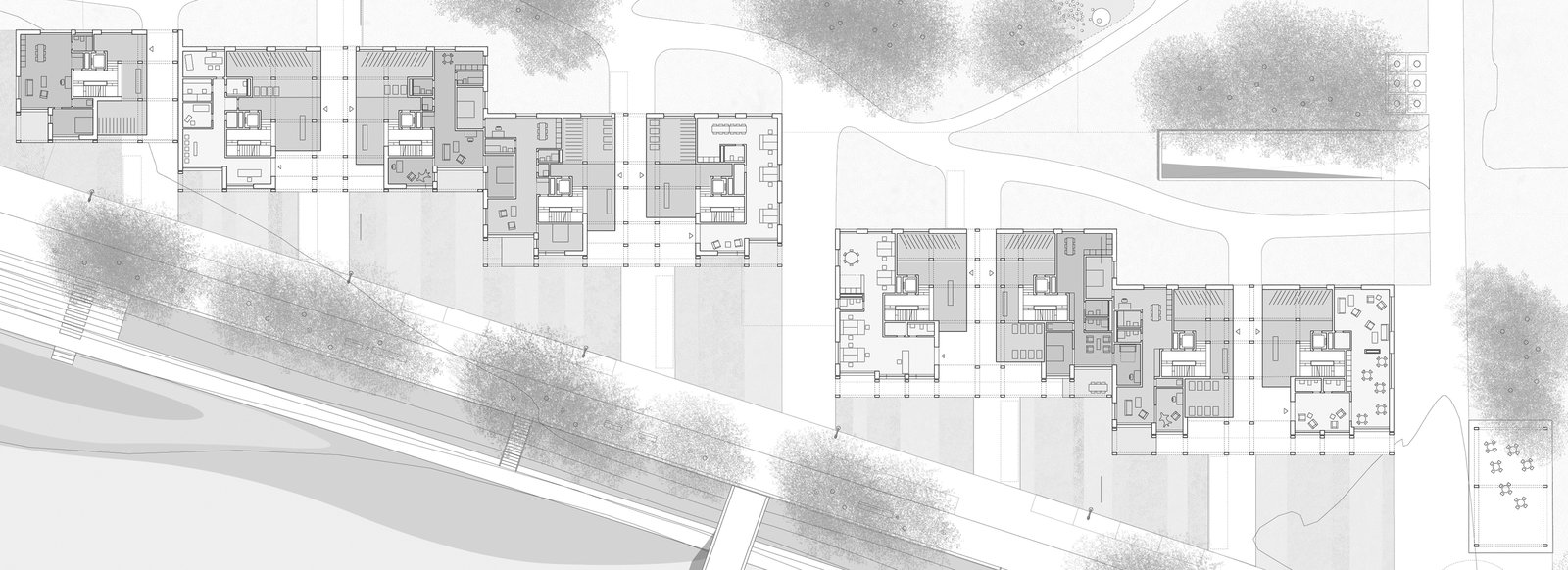
Alle Wohnungen profitieren darum von der doppelten Lagequalität Richtung Fluss und Süden, der Abstand zur Felsegg wird maximiert. Die neu entstehende Promenade bildet den Bezugspunkt für zwei langgestreckte, in Höhe und Tiefe gestaffelte Baukörper. Die Staffelung in der Tiefe orientiert sich am Flussraum, die Staffelung der Höhe reagiert auf die dahinter liegende Bebauung.
Die kompakte Volumetrie lässt eine grosse zusammenhängende Grünfläche unbebaut, die den Gyripark und das Quartier mit neuen Qualitäten ergänzt und erweitert.
Durch die gewählte Wohnungstypologie der durchgesteckten Wohnungen können alle Bewohner maximal von der Qualität der Lage am Fluss profitieren. Zwischen dunkel bewachsenem Hang und hell glitzernder Wasserfläche erstrecken sich tiefe Raumsequenzen in Nord-Süd-Orientierung. Durch das Versetzen der Volumen werden die Wohnungen um einen weiteren Ausblick nach Osten oder Westen bereichert.
GF 11’000m2
Bauherrschaft
Previs Personalvorsorgestiftung Service Public
