WOHNEN AN DER AARE, Neubau
Brügg BE
Studienauftrag
2018
Die zu beplanende Parzelle für den Neubau eines neuen Wohngebäudes liegt direkt am Nidau-Büren-Kanal zwischen der Strassen- und der Eisenbahnbrücke Richtung Bern. In nächster Nähe befinden sich der Anschluss auf die Autostrasse/ Autobahn und der Bahnhof von Brügg. Das Quartier wird bestimmt durch seine sehr heterogene Bebauungsstruktur, mit kleinen Einfamilienhäusern, in ihrer Erscheinung einfachen Mehrfamilienhäusern und öffentlichen Bauten wie der Primarschule und dem Bahnhofsgebäude von Brügg.
Die Erschliessung des Grundstückes erfolgt über die teils stark befahrenen Neubrückstrasse.
Durch das Neubauvolumen wird die städtebauliche Situation zum Strassenraum geklärt und gestärkt. Das sechsgeschossige Gebäude schafft durch seine Massstäblichkeit und seine rückspringende Fassade gegen Norden einen ruhigen Bezug zum vis-à-vis und bildet gleichzeitig den Schallschutz für die privaten Aussenbereiche im Süden. Durch die Ausformulierung des Gebäudevolumens ergibt sich für die Aussenbereiche der einzelnen Wohnungen eine klare Trennung zwischen privat und öffentlich.
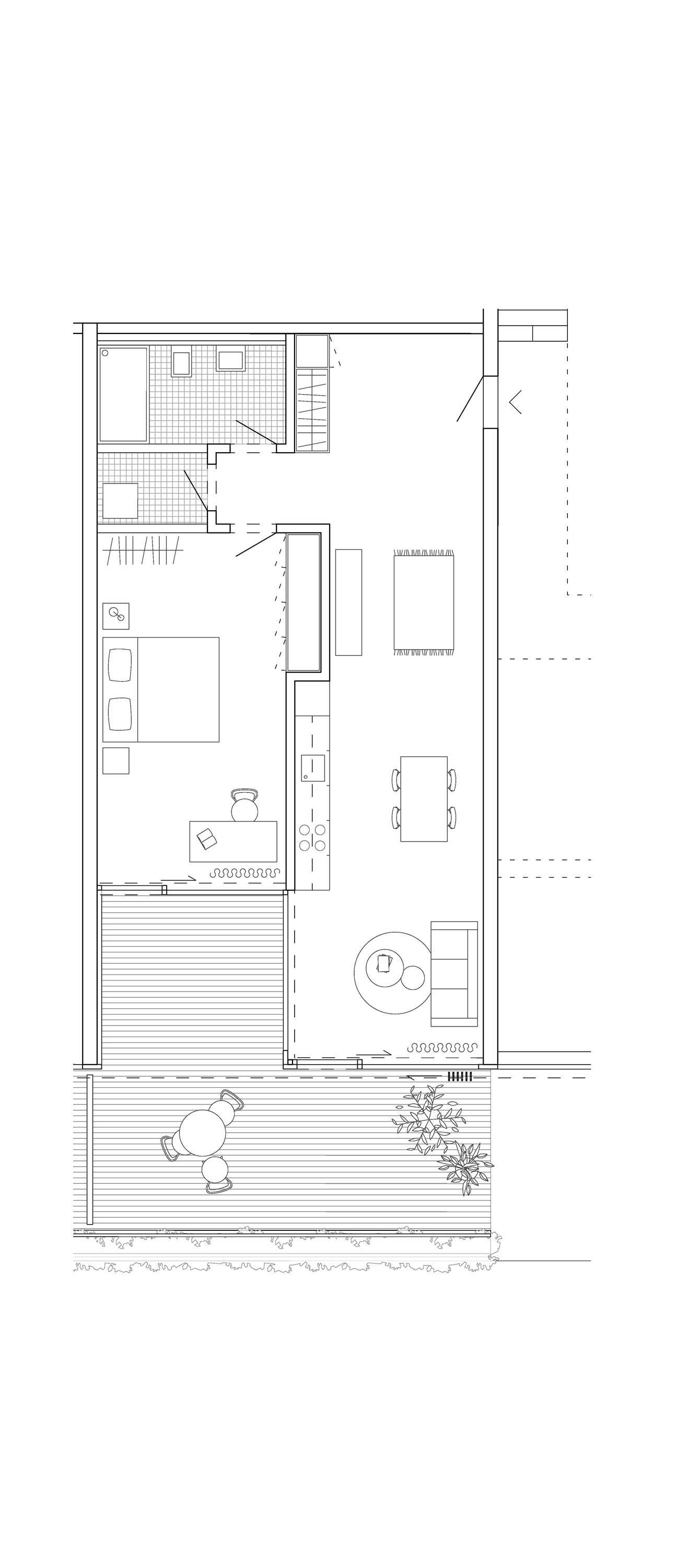
Gegen Süden erfährt das Gebäudevolumen eine Abtreppung, ähnlich einer Terrassentypologie. So können verschiedene Wohnungstypen, wie Erdgeschosswohnung mit grosszügigen Raumhöhen und grosszügigem Aussenbereich, Geschosswohnungen mit vorgelagerten Terrassen als Durchwohner und zuoberst teils Maisonettewohnungen angeordent werden. Andererseits kann auf die Tageslichtsituation, den Weitblick und die Privatheit der einzelnen Wohnungen optimal reagiert werden.
Die Architektur erhält durch dieses klare Gebäudekonzept einen eigenständigen und identitätsstiftenden Ausdruck.
GF: 6’000m2
Bauherrschaft
Aarimo AG
CH-Nidau
