ZENTRALISATION GEMEINDEVERWALTUNG, Erweiterung
CH-Wohlen
Wettbewerb 1. Preis
2004-2007
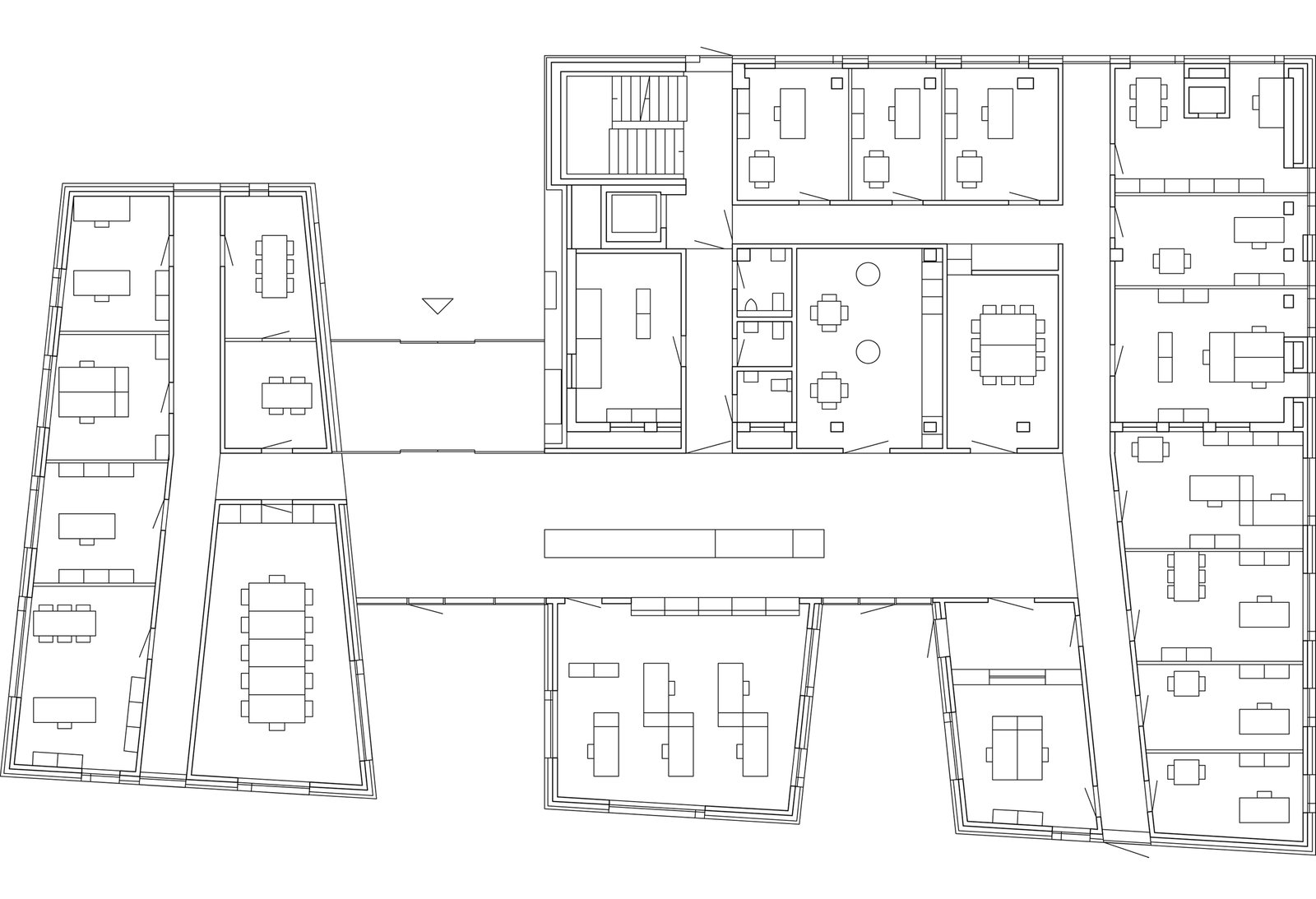
Dunkel schimmerndes Gürteltier. Das in den 60er Jahren erbaute Hauptgebäude wird im Erdgeschoss komplett erneuert und durch einen eingeschossigen Anbau erweitert.
Die Anordnung sämtlicher publikumsintensiven Dienststellen im Erdgeschoss ermöglicht eine optimale funktionale Organisation, sowie eine kundenfreundliche Verwaltung.
GF 2'000m2
Bauherrschaft
Einwohnergemeinde, CH-Wohlen
