MODULARE KITA-BAUTEN BERLIN, Neubau
D-Berlin
Wettbewerb
2017
Mit neuen Kita-Bauten in modularer Bauweise sollen in ganz Berlin in den nächsten Jahren gegen 3'000 neue Kita-Plätze errichtet werden. Die Kita-Bauten sollen aufgrund ihres hohen Vorfertigungsgrades und ihrer modularen Bauweise schnell, kostengünstig und ökologisch erstellt werden.
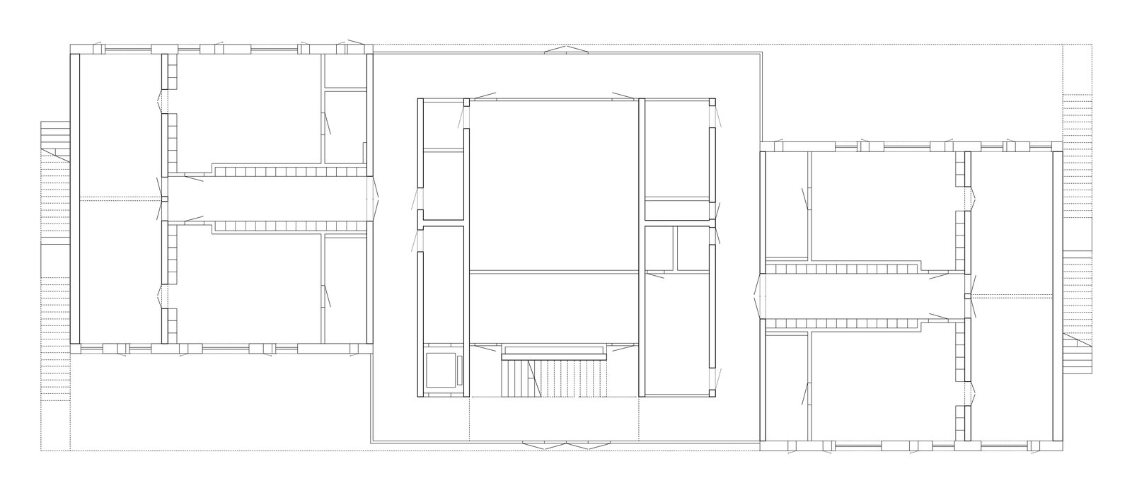
Das Projekt für den Kita-Bau besteht programmatisch aus zwei, respektive drei Modulen: Das Gruppenraummodul, die Küchennutzung und das Kernmodul. Das zentrale Kernmodul mit Funktionsräumen, Allgemeinflächen und Haupterschliessung bildet das Gelenk, an dem sich die Gruppenraummodule anschließen.
Der Erschliessungsring des Kernmoduls ermöglicht eine Vielzahl von flexiblen Anschlussmöglichkeiten für die untergeordneten Gruppenraummodule. Ihre periphere Lage weist sie sichtbar dem Kernmodul dienend aus. Die Module sind jeweils soweit verschiebbar, dass deren Korridor noch den Anschluss an den Erschliessungsring hat.
Die Ungleichheit der Fassade widerspiegelt ihren unterschiedlichen Nutzungsinhalt.
Mit der grossen Flexibilität in der Anordnung der Module kann einfach auf unterschiedliche Grundstücke und städtebauliche Situationen reagiert werden.
Die Kompositionen aller Teile sind ausgewogen und gleichzeitig bewusst „imperfekt“. Das Erscheinungsbild der zukünftigen Kitabauten ist nicht kompromisslos vollendet, sondern offen für Addition und tolerant gegenüber Veränderungen. Der äussere Pragmatismus verweist auf die Radikalität des Inneren.
GF 1'700m2
Bauherrschaft
Land Berlin, DE-Berlin
