SCHWEIZER BOTSCHAFT MOSKAU, Erweiterung und Neubau
RUS-Moskau
Wettbewerb
2008
Die Botschaft in Moskau, welche zu den grössten Schweizer Auslandsvertretungen gehört, wird in Zukunft sowohl politisch als auch wirtschaftlich eine wichtige Rolle spielen.
Das Inkrafttreten des Schengener Abkommens bewirkt zudem eine Intensivierung des Personenverkehrs zwischen den beiden Staaten, was eine massive Erweiterung des Visabereichs erfordert.
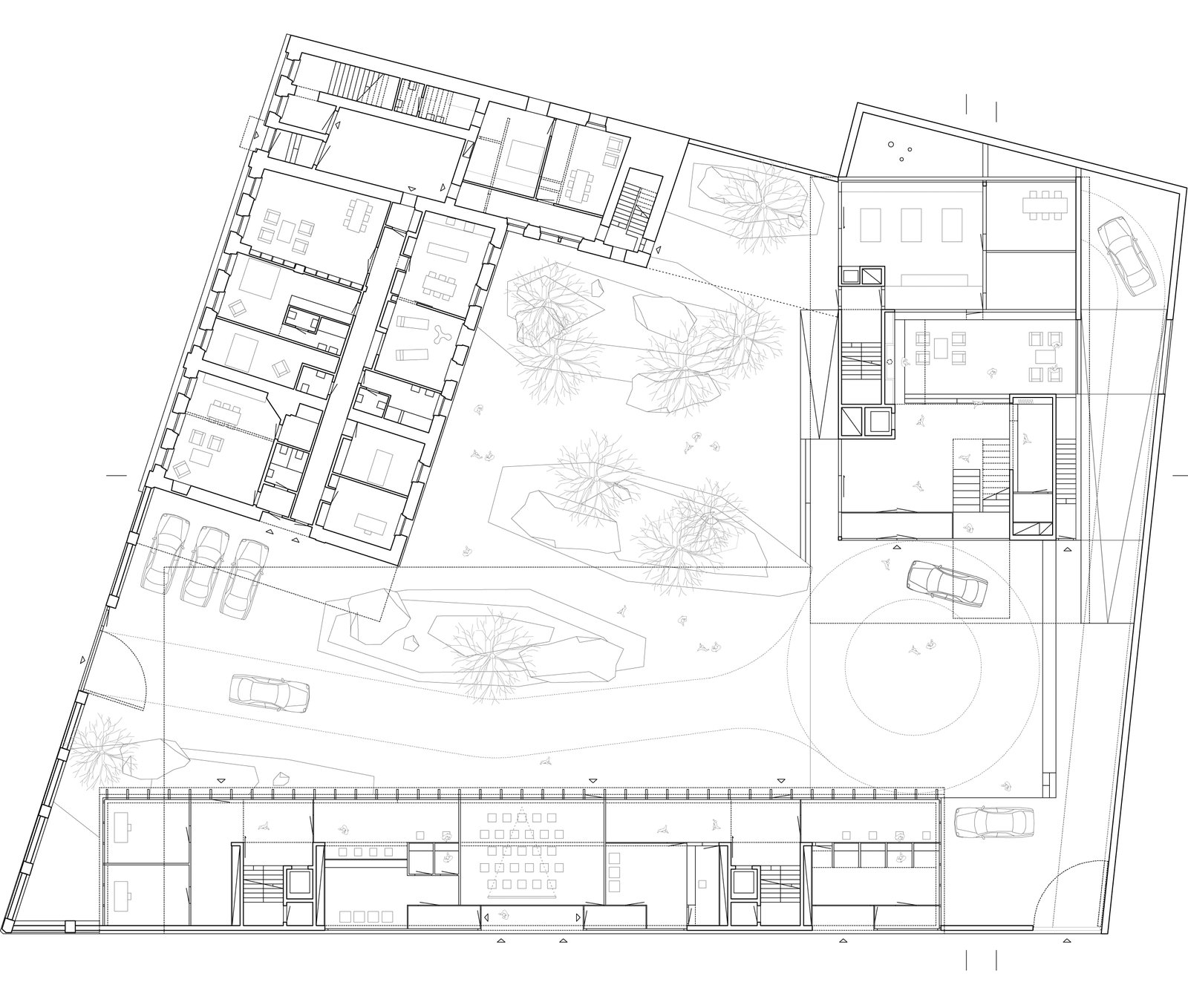
Der heutige Standort der Schweizer Botschaft befindet sich im historisch urbanen Kontext - an der ersten Ringstrasse - dem so genannten Boulevardring nordöstlich des Kremels. Analog zur gesamten ‚historischen’ Stadtstruktur Moskaus ist auch dieses Stadtgebiet geprägt von den teils abrupten städtebaulichen Transformationen welche Moskau in den letzten 150 Jahren durchlaufen hat.
Das Projekt für die neue Schweizer Botschaft in Moskau versteht sich als vermittelnde Artikulation zwischen diesen variierenden Qualitäten, indem es als Komposition von drei unterschiedlichen Baukörpern auf diese Heterogenität reagieren kann. Die relative Durchlässigkeit einer solchen Komposition verhindert den Inselcharakter, wie ihn ein exterritoriales Gebiet immer mit sich bringt, etwas aufzubrechen und den Kontrast zur stark öffentlich geprägten Umgebung möglichst gering zu halten.
Das Aufteilen in Residenz, Wohn- und Kanzleigebäude ermöglicht gleichzeitig eine räumliche Entflechtung der vielfältigen funktionalen und administrativen Anforderungen. Die Setzung der ‚neuen’ Residenz ergänzt die beiden existierenden feudalherrschaftlichen Häuser mit einer dritten, im Maßstab ähnlichen ‚Villa’ und führt so das Thema der repräsentativen Bauten ‚im Park’ auf selbstverständliche Art weiter. Das Kanzleigebäude bildet sozusagen das antagonistisch architektonische Pendant zum virtuos-räumlichen und opulent materialisierten Residenzgebäude. Ein neutralisierender Kontrast, ein räumlicher Rahmen und Hintergrund für die repräsentativen Empfangsszenen und den diplomatischen ‚Austausch’ im Vordergrund.
In Zusammenarbeit mit Raumbureau, CH-Zürich
GF 6500m2
Bauherrschaft
Bundesamt für Bauten und Logistik BBL, CH-Bern
GF 6500m2
