KUNDEN- UND SCHULUNGSHAUS DER ZENDER GROUP AG, Neubau
CH-Gränichen
Studienauftrag
2013
Die Zehnder Group AG ist ein internationaler Anbieter von Raumklimalösungen. Der traditionsreiche Hauptsitz des Schweizer Unternehmens prägt das Ortsbild Gränichens.
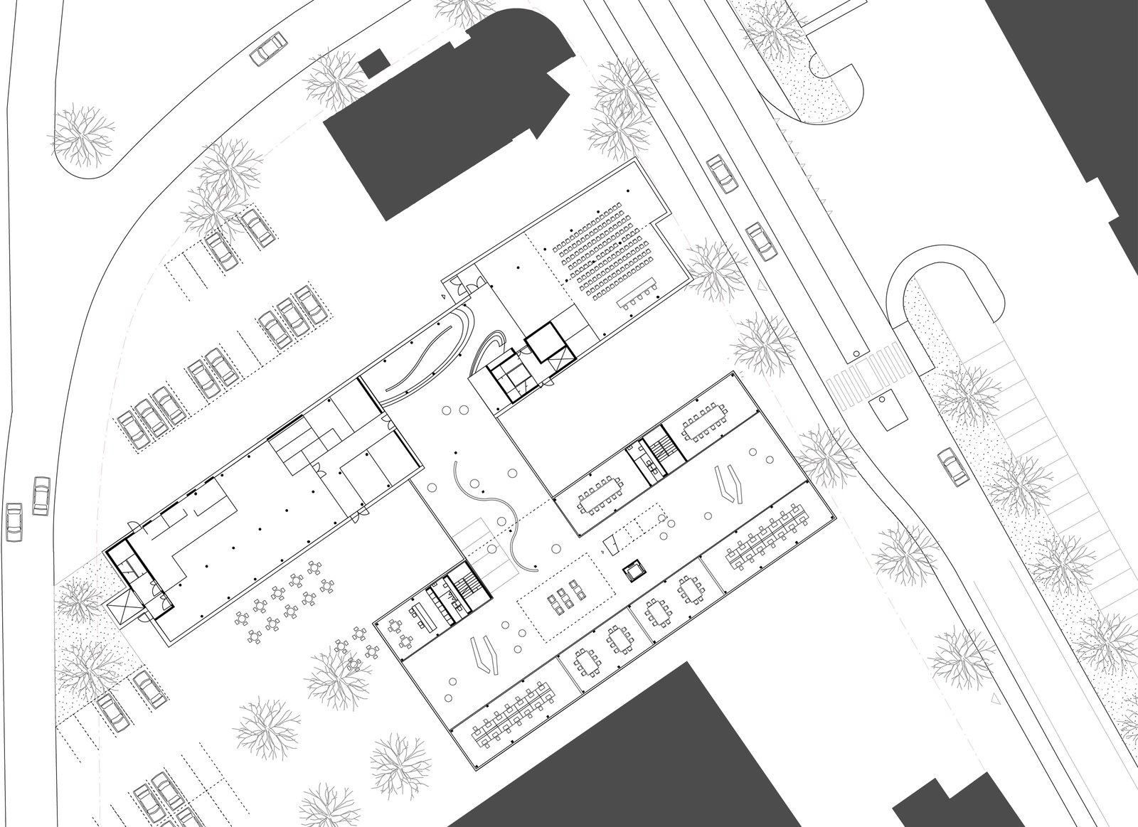
Die Einfahrtsstrasse durchschneidet das Betriebsgelände und bietet somit einen Einblick in das Herz des Betriebes. Die Kunden- und Schulungsräume sowie die Räumlichkeiten der Firmenleitung werden als neues Herzstück in einem repräsentativen Baukörper vereint. Dies soll die Wichtigkeit des Standorts festigen, Fachleuten wie Kunden eine professionelle Informationsplattform bieten und als Dreh- und Angelpunkt des Areals die Produktions- und Verwaltungsprozesse effektiv verknüpfen.
In einem Workshopverfahren wurden die Varianten ‚Pisa’ und ‚Amsterdam’ entwickelt, welche sich auf dem von Verwaltungsgebäuden geprägten, westlichen Areal positionieren. Beide Entwürfe orientieren sich entsprechend der Firmenphilosophie am Bestand, sind funktional mit diesem Verbunden und forcieren minimale Eingriffe in die Bestandsstruktur.
‚Pisa’ entwickelt sich als vertikal orientierter, fünfgeschossiger Hochpunkt mit repräsentativen Ausstellungsflächen im Erdgeschoss, Schulungsräumen im ersten Obergeschoss sowie exklusiven Flächen für die Konzernleitung in den Folgegeschossen.
‚Amsterdam’ korrespondiert als dreigeschossiger Baukörper mit dem Bestandsriegel. Im Erdgeschoss bilden Foyer, Schulungs- und Ausstellungsräume eine repräsentative und funktionale Erlebniswelt. Darüber schichten sich die grosszügigen Verwaltungsebenen.
GF 3'500m2
Bauherrschaft
Zehnder Group AG, CH-Gränichen
