SCHULHAUS WALKA, Neubau
CH-Zermatt
Wettbewerb
2016
Im Ortsteil Walka, einem der ältesten Teilbereiche des Dorfes Zermatt, soll das bestehende Schulzentrum mit wesentlich vergrössertem Programm ersetzt werden.
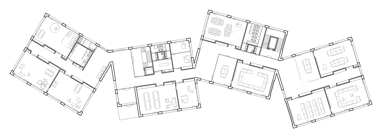
Obwohl die Dorfstruktur Zermatts auch unter den historischen Bauten sehr unterschiedliche Massstäbe kennt, bilden die ortstypischen engen Räume zwischen hohen Häusern und Felsen die Grundlage für die städtebauliche Setzung der neuen Schule.
Oberirdisch sind vier Volumen ablesbar, die organisatorisch zusammenhängen. Ihre leicht zueinander gedrehte Anordnung, sowie ihre Staffelung in der Höhe führen die dicht bebaute, verwinkelte Bebauung des Ortsteils harmonisch weiter. Die beiden grossmasstäblichen Gebäudevolumen der Doppelturnhalle und des Auditoriums werden in Sockelgeschossen weitestgehend unterirdisch untergebracht. Durch die versetzte Anordnung der Schulvolumen zueinander kann eine beidseitige Belichtung des Schulhauses trotz des nach Norden anschliessenden Steilhanges gewährleistet werden.
GF 10’600m2
Bauherrschaft
Einwohnergemeinde Zermatt, CH-Zermatt
